LOCATION
Cumbayá, Ecuador
CATEGORY
Bar
Text description provided by architect.
Snack Bar is an outdoor Chinese food and drinks stall located within the courtyard of the Paseo San Francisco shopping center in Cumbaya, Ecuador.
The project was designed to be comfortable, secure, transparent, and easy to assemble. We avoided enclosing the space, due to the hot and dry local climate, as well as the heat radiating from the cooking equipment.
The design had to be open air, but security was also a factor. A cage was wrapped around the work space, allowing for plenty of natural ventilation, while simultaneously providing a security barrier.
The transparency of the cage additionally benefited the client, who also owns a sit-down restaurant across the hallway, and wanted to maintain an unobstructed visual connection between both restaurants.
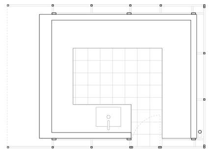
Snack Bar's design is simple; a box within a box. The interior core is dark and blends in with the surrounding surfaces of the mall, while the outer shell stands out in sharp contrast.
Steel bars were welded into a bamboo forest latticework, and then sprayed with glossy white auto paint to maximize the visual pop.
The security screen doubles as a form of signage. Snack bar is fully visible to visitors on the upper levels of the mall as well as anyone using the neighboring glass elevator and escalator.
For this project, the roof was especially significant, as it acts as the 5th, and most important facade. The project was mostly built offsite with ease of onsite assembly in mind.
The construction schedule was accelerated by using detailed 3D assembly drawings, as well as full scale drawings of the bamboo pattern for the steel welders to work off of directly.














