Healthcare Center and Regional Government Offices
YEAR
2013
LOCATION
Cuenca, Spain
CATEGORY
Healthcare Center, Offices
SITUATION AND LOCATION
The plot is located in the southeast area of Cuenca. It is a well consolidated area from the urban expansion of the city, with single-family houses and housing in height.
The plot is included in the Urban Partial Plan that was developed according to an urban layout based on a grid and a closed block urban typology. It is a 4046 m2rectangular plot, with a 6 m uneven ground.
Considering that the purpose of the project is designing a building of 16.000 square meters, the plot is small comparing the programme of uses that is required to include.
LAYOUT OF THE GIVEN PROPOSAL
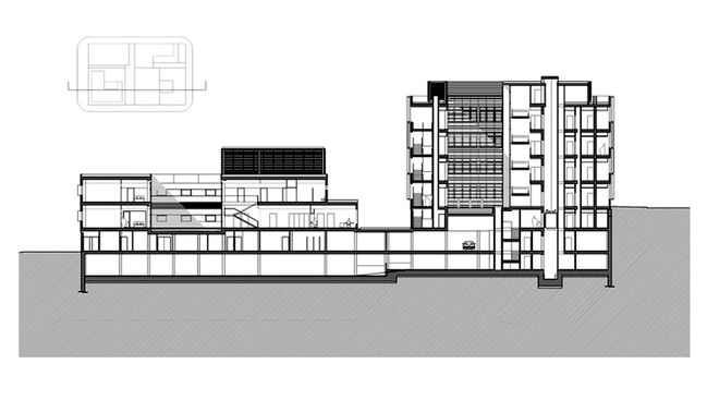
A double programme must be resolved;on one hand, the Health Care Center IV and on the other hand, the Primary Health Care administrative building and the Provincial Benefits Office. The programme has been resolved by designing two independent buildings, one for each use.
The administrative building has been located in the upper part of the plot, with the pedestrian access from the Música Española Avenue, so the citizens can easily identify it. The administrative building intends to be an emblematic reference of the SESCAM in the city and the most singular building in a high residential density urban area.
The administrative building is composed by two main pieces, generating an architectural dialogue between them. The first one, the access piece, is a single height building and is configured as a big opening. It has a permeable and kind scale, welcoming and inviting us to get in. However, the second one is more hermetic and has bigger scale.
It has an urban scale, so it works as an element of reference. This medium size tower gives to the whole project a higher expressive strength and organises it in four floors around a courtyard. The health care center has been located in the lower part of the plot.
A spatial dialogue between the two buildings has been proposed so the accesses were resolved and the functional independence was kept, but looking for a single reply to the neighbourhood.
SOLUTION TO THE FUNCTIONAL ASPECT
Two independent garages have been proposed. Their accesses are located in the semi-basement floor so the entrance and exit ramps are not necessary. The pedestrian access to the Health Care Center has been proposed through the Río Mariana Street.
The access to the Emergency Department is made from the Río Mira Street, having in mind the easy access of the ambulances as well as the clear height needed for them. The goods access is made through the street that is located between the two buildings, taking advantage of the existing uneven ground.The access by motor-driven vehicles is made from the Rio Turia Street.
The emergency department is located in the surgical area and the residence is located on the ground floor, with a direct access from the street with a covered porch that permits access to ambulances.
Then the medical consultations are disposed. At the back of the observation room, the laboratory and cleaning rooms are located, and finally we can find the residence.
The layout of the health care center is based on several pavilions organised around two courtyards located on the ground floor. The public area access is located at the back, next to the vertical communication nucleus.
The medical pavilion is provided with an easy access from the emergency area and occupies an independent position from the main circulations of the building.
The cleaning rooms, installation rooms and storage have been placed in the semi-basement floor. The access to these areas is made from the open street that is composed by the GAP/OPP building and the Health Care Center.
The pavilion that houses the general medicine practice rooms and nursery has been designed in a single floor. (First floor) The pedestrian access to the administrative building is made through the Música Española Street
The lecture that the building gives, intends to be a double condition at the same time; being kind to the citizens and representing the power of public services, that’s why an entrance pavilion has been designed. It has a human scale and it sets back five meters, close to the building in height.
In the entrance pavilion there are placed: The main lobby, the reception area, the files storage and the conference hall. There are also placed the toilets and the waiting area. This pavilion has a higher clear height than the rest of the other buildings. The open public space, the customer service of the GAP and OPP are located on the ground floor.
The facade of this building is surrounded by a skin made of slats that fulfils a double function; climatic and lighting control. Those slats are adjustable so they can work properly, independently of the season of the year or the orientation. Behind those slats it has been placed a second skin with storage capacity and big modulated panes of glass, to offer multiple choices of inner redistribution, without affecting in any way the correct building operation.























