
Condominio Polo Cachagua Etapa 1
ARCHITECTS
Estudio Valdés
COLLABORATOR ARCHITECT
Isabel De La Fuente, Carolina Werth
ARCHITECT IN CHARGE
Leonardo Valdés Cruz, Carlos Ignacio Cruz Elton, Alberto Cruz Elton
YEAR
2013
LOCATION
Zapallar, Chile
CATEGORY
Housing
Text description provided by architect.
The Polo Cachagua Condominium was created as a response to these inquiries: ¿How do we integrate a higher density housing project in a short term residential facility, without altering its local character?
How to limit each house to function individually, but to be understood as parts of a whole?.
The project, located in a 1.2 acre rectangular shaped terrain, not only meets the density requirements of a real estate venture, but also recognizes an architectural calling which urges the condominium to be subtly placed in its local ambience and to lure towards the interior the surrounding nature.
The Condominium, strategically located, softens its presence by placing before it a perceptual thickness made up of an interior path and a common green area, leaving towards the back ten sites uniformly elongated, with a 16.5 meter front and just one remaining site placed where the total area would widen.
This last terrain allows us to achieve the maximum density of eleven homes, changing its architectural wave by reducing the number of floors thus allowing a lower visibility from the public areas.
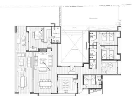
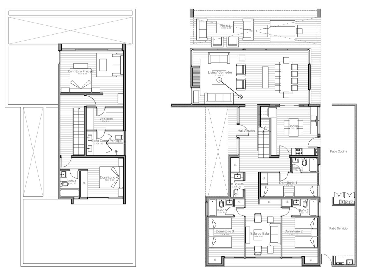
The main layout of the condominium resembles a great building fragmented in rectangular volumes disposed side by side, with a 10.5meter built façade and a 21 meter face proceeding towards the back.
Every unit was resolved in its length under the double front concept, opening their gardens and their views to the North, towards the hills, and to the south, the fields of the Polo Club.
Moreover, there are 3 meter residual areas between the houses and the limiting fences of the site that produce positive spaces, generating on one hand, a deliberately gentle trail from the secondary access , and on the other a sheltered laundry room.
Aside from the fact that the residential units are isolated constructions, they are however totally integrated as a whole by their neighboring fences.
To the front, the drywall or pirca will help the observer perceive it as a continuous base, while the side walls, coated in black pine, will present itself as the moorage of the buildings as it introduces itself into the interior space.
From street view, the building is perceived as a volume that fixates most of the heavy construction on the first level, leaving the second level as an ethereal and transparent body.
This volume reinforces the idea of the double front, as its side walls prevail as the opaque faces of the unit, the opposite ends of the building open up in the form of large windows.
These windows are extended through the diagonal and inclined roof, which incidentally also gives the architectural elevation of the condominium a playful motion.
The interior spatiality, also developed form the dual fronts, arranges the circulations, access, hallway and staircase in the center, and encloses bedrooms, living and dining room at the ends.
The kitchen, on the other hand, is placed in the center but is integrated into the dining room through sliding doors.


































