
The House Of Kubogaoka
YEAR
2013
LOCATION
Japan
CATEGORY
Houses
This residence is a two storied residence built in wood, located in a residence area about an hour's drive from Tokyo.
To achieve a clear contrast, white has been added to the basic color of the mortar of the exterior walls.
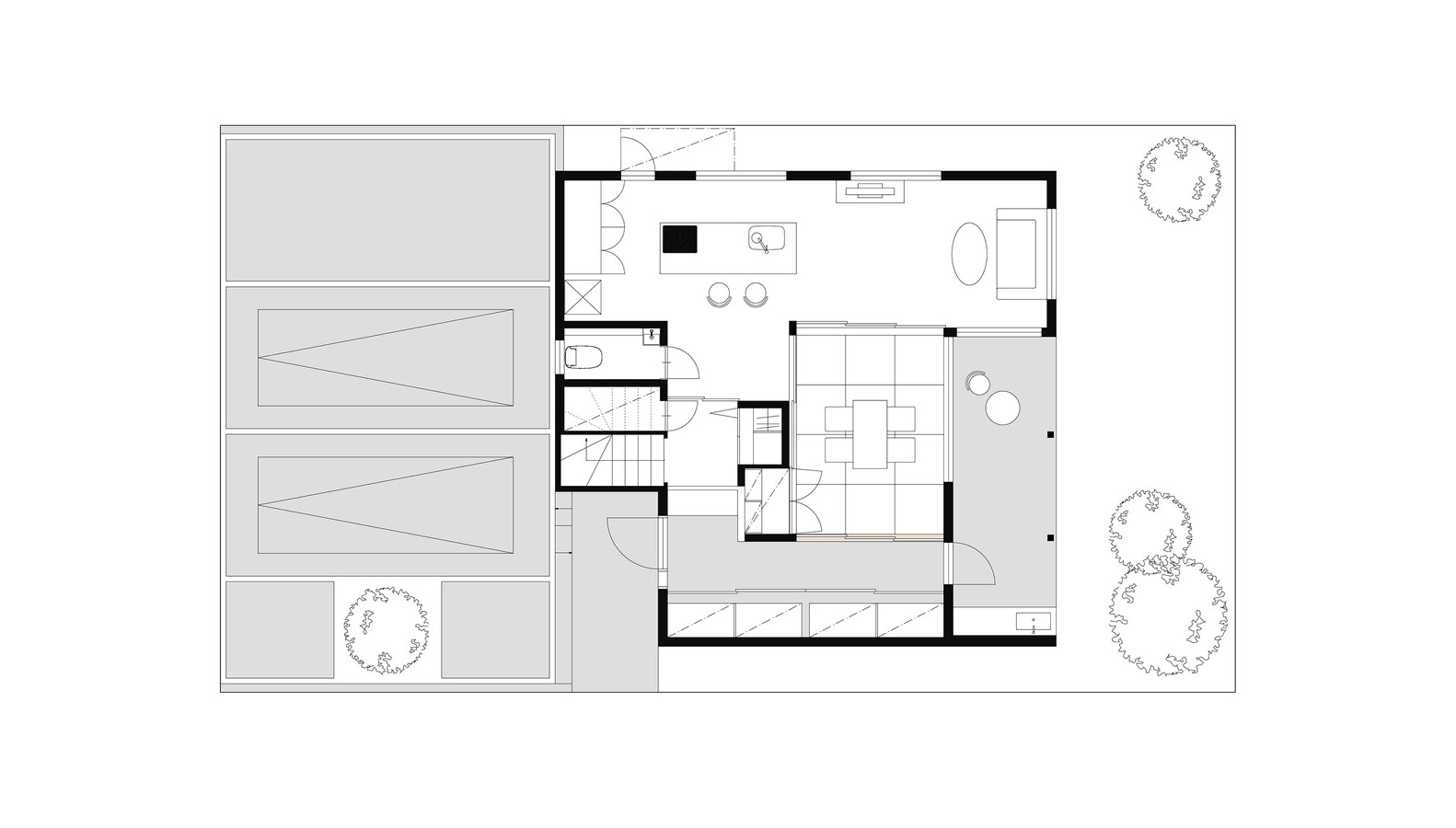
As for the interior, when you open the front door, you will see an earth floored room like that of an old Japanese house, extending all the way to the yard beyond and you will see a tatami mat living room running along the earth-floored room (area).

T +81 29 8865682
Kichi Architectural Design 吉デザイン設計事務所 Atelier como
4-6-3 Kenkyugakuen, Tsukuba City, Ibaraki, Japan 〒305‑0817 茨城県つくば市研究学園4‑6‑3




























