Office of Soil Waste Management
LOCATION
Yanchao District, Taiwan (ROC)
CATEGORY
Workshop, Offices
Text description provided by architect.
This small project humbly sits in the countryside, approximately a one-hour drive from the center of Kaohsiung City, a southern metropolis in Taiwan.
Commissioned by a client who owns a 1.27-hectare land for soil waste management and treatment, the major request was simple yet crucial that they expected this building to become the place where they could survey the whole site and be capable of immediately understanding the actual situation at any moment.
This small box-like building is not only their watchhouse but also functions as an administrative office in an attempt to monitor working progress and organization of the whole area; Consequently, the design should be open without any visual obstacle to disrupt their supervision.
Hence, the relationship between the office and the landscape of soil waste is the primary essence of design.
Frequently occupied by multiple types of heavy-duty “objects”, including trucks and excavators, the office is depicted as one of the family members, especially as parenthood looking after other mobile equipment and vehicle.

By deliberately comparing the scale of all moving objects, from biggest vehicles to smallest ones, Like hydraulic table carts, the design of the office is intentionally optimized in a similar scale and size.
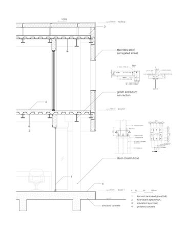
The building consists of two levels with two distinctive characteristics, transparency and opaqueness, focusing outward and inward respectively.
The first level as an administrative office is mainly a circular space enclosed by transparent glass in order to keep it visually openGiving an almost 360-degree panoramic view of the surrounding field and extending visual angle.
The second level is an opaque solid volume for the archive and storage, floating above the ground floor by stacking upon the transparent office space.
It’s cladded by stainless-steel corrugated sheets, neutrally reflecting the environment and sky on the façade surface.
Semi-outdoor shading space under the “metal box” also offers a great place to rest in the semi-tropical climate of Taiwan.



























