
Office Building Podkriznik – “Propulsion”
ARCHITECTS
Superform
MANUFACTURERS
Reflex D.o.o, Ajm, Doorson
LOCATION
Municipality Of Nazarje, Slovenia
CATEGORY
Office Buildings
BASIS
The client intended to move the existing production facilities to a new building. The building that housed the production facilities needs to be renovated in terms of energy efficiency.
Existing building was constructed in time of late modernism. It has potential for interesting renovation design possibilities.
DESIGN CONCEPT
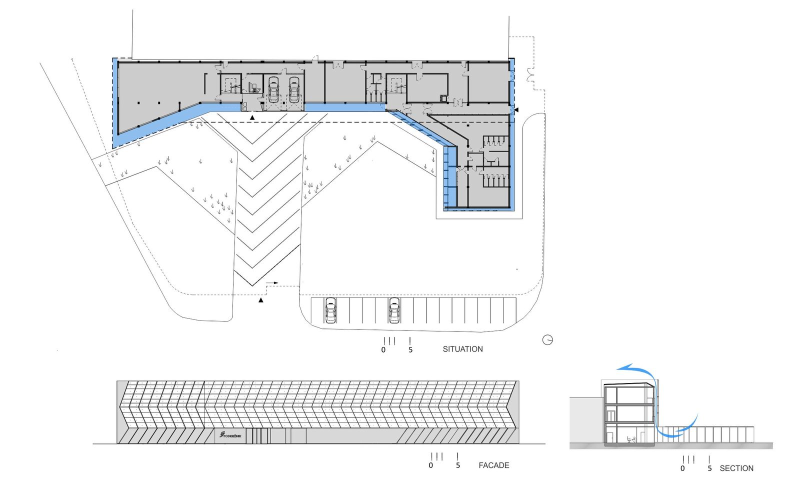
The design of the new façade results from the form of “mechanical sprocket” which is one of the products manufactured by the company.
By combining these two basic principles of design, an effect is created on the façade blurring the line between 3D and 2D elements.
MATERIAL
Façade skin materials (metal and glass) expresses identity of the client. Subtile design of the Façade skin provide good relation to the delicate environment of the Nazarje settlement.
SUSTAINABILITY
New ventilated façade skin with metal brisolei provide necessary shading.
Dimed glass balance the inside temperature of the building. With new facade skin energy sufficient of the building is very much improved.














