Mandrarossa Winery
ARCHITECTS
Gruppo Vid'a
LEAD ARCHITECTS
Gaetano Gulino, Santi Albanese, Luisanna Gulino, Salvatore Gulino
LOCATION
Menfi, Italy
CATEGORY
Winery
Text description provided by architect.
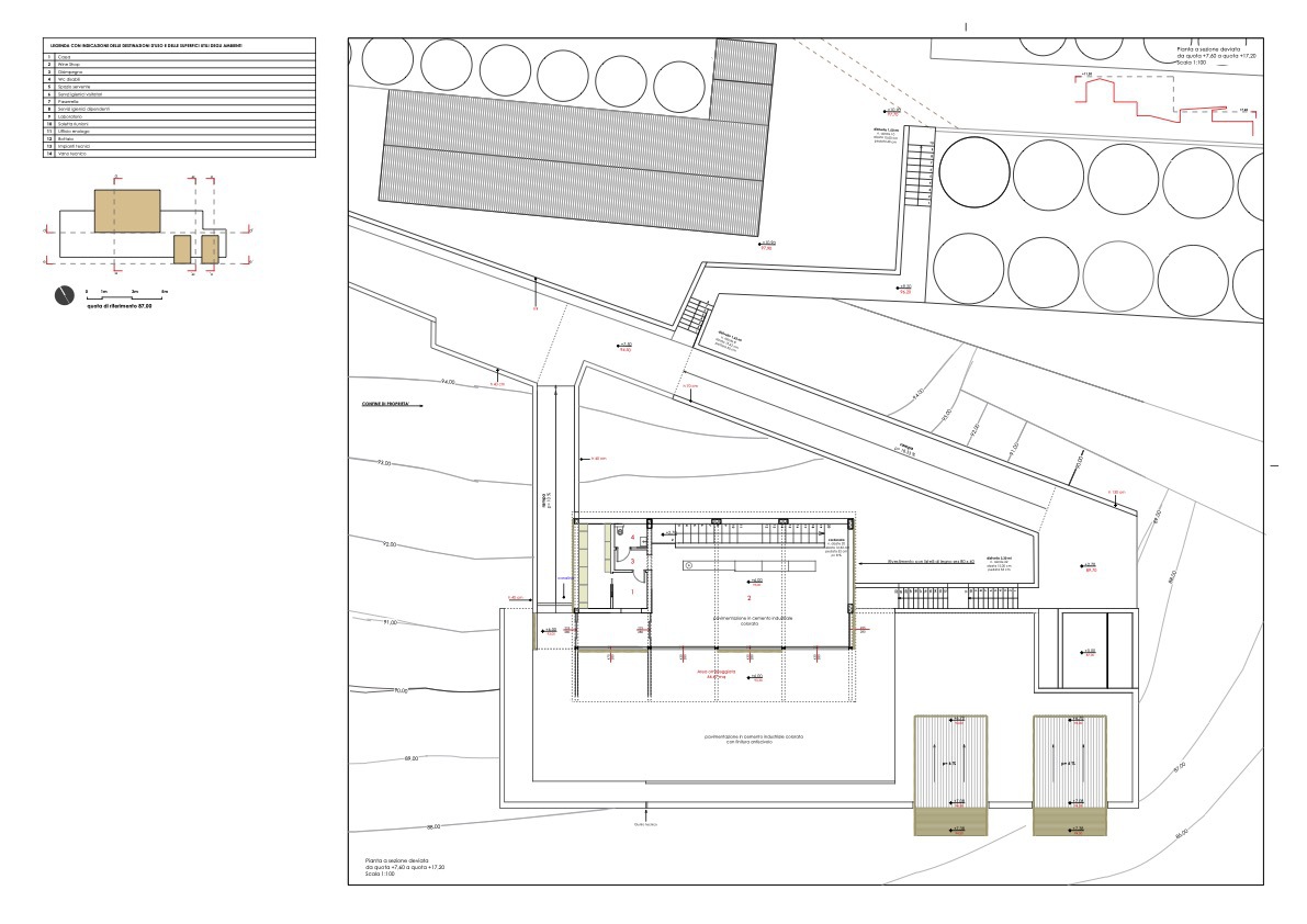
The new barrel cellar of the Mandrarossa winery is located in an area peculiar for his landscape, on the southern outskirts of the city of Menfi, at the foot of the existing Settesoli factory in c.da Puccia.
The structure is located on a hill about 90 m a.s.l. and is organized in various levels above and under the ground.
The morphology of the site fully interacts with the surrounding landscape, consisting of the Memphis countryside, represented purely by vineyards and olive trees, whose background is the splendid African Sea.
The designers' idea was to conceive the building as a terrace modeled on contour lines.
The result of the operation is a three-story building almost completely hidden in the natural slope but exposed on the outside through a colored concrete base, oriented to the southwest, on which a rectangular body with a sloping roof rests.
This last part is the highest level of the structure and consists of the entrance of the building, the initial reception area, and the Wine- Shop of the cellar.
From here starts a vertical connection system designed to generate an exploration path that allows the visitor to observe from above the rooms of the barrel cellar.
Walking through a walkway made of a metal structure positioned at an intermediate level it is possible to observe about 120 barrels of different sizes and the areas destined to wine reserve.
The path of the walkway ends inside a tasting room with two large openings towards the suggestive landscape, these openings are exposed on the outside, on the main facade, by two cantilevered elements that interrupt the rigidity of the base.
In the choice of the materials, the main goal was to manage to integrate the structure as much as possible with the colors of the surrounding landscape.
The building that emerges from the basement and the volumes of the tasting room are covered in wood while the basement is made of colored concrete, with pigments to obtain a color similar to that of the surrounding ground.
Considering that the design idea was to generate an artifact that worked with the morphology of the site, part of the ceiling was designed as a garden roof with the same vegetation of the hill.
Both in the roof and the areas around the building, essences typical of the Mediterranean vegetation have been planted.
This semi-underground project aimed to combine the identity of the site and the history of an anthropized territory aiming to become a recognizable landmark.
Starting from the knowledge that all the large industrial buildings have an environmental impact on the territory, the goal was to reduce it to a minimum by orienting the design choice on a semi-underground structure integrated with the surroundings.
The contact with the ground helps to keep the humidity level stable inside the barrel room to favor the conditions for storing wine.
The exposure of the entire complex was designed to optimize the use of solar radiation at any time of the year, the southern facades are protected by a wooden overhang of the roof that favors the entry of solar radiation in the winter and prevents it in the summer.
The other vertical non-glazed surfaces have many openings but are of reduced size to allow complete illumination of the interiors without the problems of direct radiation.
The garden roof constitutes natural insulation of the horizontal surfaces thanks to the layer of earth that houses the vegetation.
Finally, the use of natural materials such as wood for the entire cladding of the reception area reduces CO2 emissions. The systems are powered by the energy produced through the photovoltaic system of the already existing Cantina Settesoli.


























