
Beton Brut Residence
ARCHITECTS
The Grid Architects
LEAD ARCHITECTS
Snehal Suthar, Bhadri Suthar
PROJECT COORDINATION
Vishvajit Hada, Keyur Patel, Ruchik Rathod, Ankita Mevada
CONTRACTOR
HN projects, Hariom Thakkar
ENGINEERING
Ravi Engineering Corporation, Milind Mehta
MANUFACTURERS
Saint-Gobain, Tata Steel, Astral Pipes, Greenhouse, L&T, Mitsubishi, Shailja, Techtona Grandis
YEAR
2022
LOCATION
Ahmedabad, India
CATEGORY
Houses
Text description provided by architect.
This project involved creating a simple, functional home for a small entrepreneurial family with an appreciable creative streak. The client runs a thriving business, but is also an enthusiastic poet, while his son is an avid wildlife photographer.
THE INTENT -
The home had to be built on an approximately 12,000-sq-ft, southwest-facing plot. The primary concern was to ensure a structure that would be protected from the harsh sunlight and heat.
This became entwined with the desire to create an abode that reveled in a sense of space — a home that brought the family together but left enough space for the individual personalities to thrive and bloom. This meant we had to ensure places of congregation and places of solitude in the spatial narrative.
Additionally, we endeavored to pair enclosed volumes with open areas to amplify this sense of freedom and luxury. We also proposed that the home would mesh the intangible with the tangible — in effect, create diverse experiences within its physical form.
THE CENTRAL IDEA -
The mysterious and alluring visual of an Indian woman protecting her head and face from the sun with the graceful folds of her pallu or odhani became a compelling inspiration when it came to creating a home sheltered from harsh climatic elements.
With the decision of creating a pure structure that respected honesty of materiality, the architectural path was determined as a brutalist one, typified by bare concrete, geometric shapes, a monochrome palette, and a monolithic appearance.
The beauty of this approach was its unification of two very different concepts: a brutalist expression seeded in an emotive inspiration. We decided to continue this abstract of a traditional image by infusing the interiors with Indian elements as soft touches. Incorporating ‘brutal’ in social housing ideals and traditional Indian typologies results in, what we call, neo-brutalism.
Therefore while Beton Brut — raw concrete in French — may appear strong and assertive, it possesses a soft, emotive, heart.
THE ARCHITECTURAL FORM -
Since the plot faces southwest, the garden was placed on the west. Once the floor plan was frozen, the challenge was to control the sunlight coming in from the southwest. Architecturally, this concept was proofed by studying the sun-path.
Additionally, the architectural envelope at this point looked too bulky and disproportionate to the scale of the home. To circumvent this, we sliced and staggered the rectangular box, and strategically ‘erased’ the bottom portion of the resultant cantilevered portion to derive the canopy.
This resulted in a visually light, delicate structure with deep overhangs that protected the fenestration from the sunlight and walls from heat gain. The skewing also gave rise to three layers of cantilevers, with terraces sheltering under the canopy and pockets, big and small, that could be used for plantation. Consequently, now most of the enclosed spaces are attended by lush greenery.
THE INTERIOR NARRATIVE -
A simple entrance, sheltering under a concrete canopy, features a three-meter-tall door, scooped outward and embedded with stone. This opens to a long passage with living spaces strung along the left, and culminating, visually, at the backyard wall adorned by patinated sculpture.
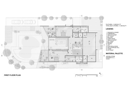
On the right, a seating arrangement in a vestibule-like space forms the waiting lounge. Take a turn, and the whole inner sanctum unfolds, within visual distance of the central landscaped court: the formal living room, the dining area, the bedroom of the senior couple.
The kitchens (wet and dry) and the store are tucked away in a corner. More bedrooms with ensuite facilities and walk-in dressers lie upstairs. All living spaces are connected to the staggered terraces or gardens, putting the occupants in constant touch with the outside.
The aesthetic articulation is liberally peppered with Indian elements, softening the gravitas of the concrete envelope. Reclaimed panels and brackets from old Havelis, mandapas, old vessels, and carved panels that depict gods and installations showing hand mudras pour an Indian essence into the home.
The most shining example is the jharokha mounted on a soaring living room wall, through which you can glimpse the room from the first floor. The simple, clean-lined furniture does not disturb the architecture and yet is very functional and comfortable.
THE MATERIAL PALETTE -
The selection is ruled by the honesty and purity that allows the beauty of each material to shine through, unhindered by cosmetic overlays. Grey concrete, the singular and central material, stars both in the architectural and interior narratives.
These grey expanses are beautifully textured by timber imprints of the shuttering used to cast the slabs and walls. In the interiors, the building material is joined by sandstone, Kota stone, sunlight, and teakwood (for furniture) to create an environment that is beautifully poised between simplicity and richness.
LIGHT AS A DESIGN TOOL -
The importance of light to architecture cannot be stressed enough. The power of natural light to create a sense of positivity and wellness is unmatched. It also adds a unique aesthetic dimension to a space. In this case, too, we ensured that the home was awash with light by creating a central volume — comprising a landscaped court and the stairwell — crowned by, not one skylight, but two.
The first of these is a linear slit-like opening, placed near the wall, that throws light on the beautiful timber textures of the concrete expanse, creating powerful and dramatic visuals. The second is a faceted structure with a cut-out that pours glare-free light into the stairwell and the green court below. Besides this, extensively glazed fenestration throughout the house means that the interior spaces are suffused with the beneficence of sunlight throughout the day.
This means that the users while being in the comfort provided by an enclosed space, feel constantly connected to nature through sunlight, green views, and proximity to plantations.
THE PLANTATION -
Beton Brut fully leverages the animating freshness of plants both externally and internally. Keeping in mind the region’s largely arid climate, we have put in drought-friendly plants on the terraces as they are face southwest.
These seasonal and sustainable plants also encourage hummingbirds and butterflies — and thus biodiversity. Trees are positioned strategically so that when they grow, they will protect the house from the southwesterly heat. The indoor plants have been selected to maintain the moisture level in the interiors.
Beton Brut makes a definite visual statement depicting purity of form and intent. Its eye-catching form possesses a softer side: that of contextuality and rootedness to the land and culture. Its narrative builds a relationship between the house and the city; man, and nature — without which architecture is meaningless.
































