
24 Housings in Argenton Sur Creuse
YEAR
2013
LOCATION
Argenton-sur-creuse, France
CATEGORY
Apartments
Text description provided by architect.
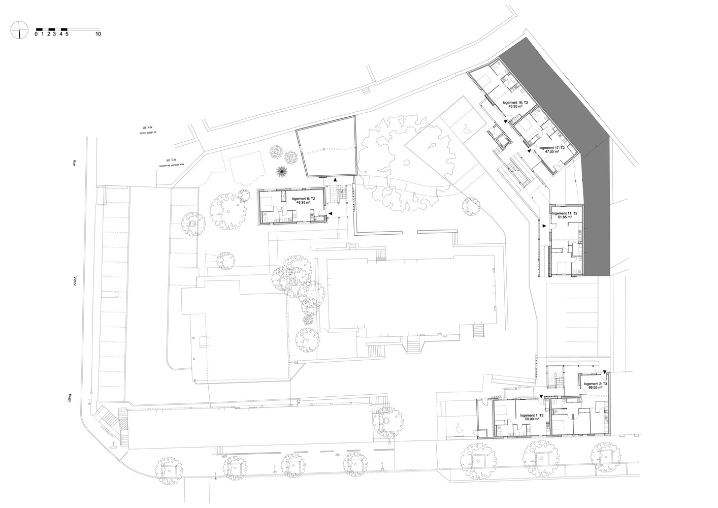
In the centre of Argenton sur Creuse, in close proximity to the library, the project fits into a plot of rough ground. In fact, a gradient of more than thirteen metres separates the highest and lowest points.
The plan for the flats connects up with the central building which will be reconverted as part of the plan by the town of Argenton.
Four blocks are spread out over the site. The first, bordering the street, marks the entrance and frames the retained existing building.
The other blocks are distributed around the peripheries of the site and extend onto two to four levels.
Access is from the outside and is achieved through passageways.
The whole of the ground floor area is accessible and a lift serves the main building.
A masonry base supports the various storeys.
The various storeys are composed of concrete floors, then a ‘coating’ in wood constitutes the structure of the outer skin.
This ensures thermal efficiency since thermal bridges are thus suppressed. This structure is clad in a covering of untreated douglas or boxed in with coloured steel. The metal parts are galvanized.
























