ARCHITECTS
Axial Studio
ARCHITECT IN CHARGE
Ferdy Tan, Sofia Tan
MANUFACTURERS
Skk
DESIGN TEAM
Arfan, Livia
LANDSCAPE
Axialstudio
LOCATION
Kecamatan Kelapa Dua, Indonesia
CATEGORY
Houses, Houses Interiors
Text description provided by architect.
A grey-colored homey home that resembles well-defined modern space to spend the weekend for two.
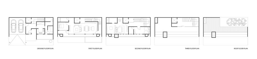
Situated in Gading Serpong, Tangerang, the grey structured three-storey HM house stands on an area of 160 square meters.
Prior to building the project, the architect had encountered the uniqueness of the existing site that lies in the dimension of the land size.
The long site becomes the main center of the house, as the overall building is adjusted to be built in only 16 x 6 area according to existing regulations.
The architect also explains that several advantages and disadvantages are affecting the house with this type of land site, and the challenges are to tackle each factor conditions that are needed to be properly managed.
Meanwhile, the advantage of a wider front face is to allow each room to be exposed from the outside.
Providing a warm and natural ambiance throughout the day and night where natural lights and air circulation in the house can be adequately achieved.
However, to achieve a properly exposed air circulation, the architect needs a design strategy through the application of particular elements that filters every lighting from the outside - to keep it thermal and maintain the privacy of respectful owner.
In addition to that, the architect chose a cement roster for the facade where it is believed to play an essential role in filtering excess sunlight.
In a way to solve one of the challenges when designing HM house, and to meet the demand of the owner itself.























