YEAR
2014
LOCATION
Aso, Japan
CATEGORY
Houses
Text description provided by architect.
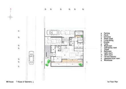
The site of M6-House is at a residential area in Kumamoto city of one of the Japanese main city.
.Therefore, the concept of this house is the sense of liberation with the securement of privacy by the harmony with interior space and balcony
First, living – dining where all families are, is designed an atrium and big two windows to get a lot of sum light, also the interior walls are based around the color white and it produces a lot of reflection light.
In other words, the client’s family can feel the sense of the liberation. Also, when madam is cooking, she can see and check children.
The terrace balcony is south side. Also, this space is surrounded by 2.5m wall and children enjoy playing in safety and owner can party outside with family or his friends.
The staircase has a role of a book rack. The rooms at 2nd floor are only bedrooms of parents and children.
Child room is able to separated two rooms due to the plan of the growth of children. Finally, I hope that this house will become the best space for family.





























