Tropical Holiday Twin Houses
AREA
140 m²
YEAR
2016
LOCATION
Vietnam
CATEGORY
Houses
Text description provided by architect.
Recalling the details of common Mekong delta traditional architecture and using local materials was the way to bring these two holiday houses in harmony with their rural environment.
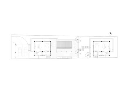
The project is located in Tra Vinh, in the Mekong Delta, on a very long and narrow land, 115 meters per 14 meters.
The owners are a Vietnamese family of three generations who want to spend holidays in their hometown.
Because of the different life styles between generations, the project is split in two houses, with strictly same area and function, mirrored and a central courtyard.
While each house brings privacy for each member, the central courtyard with the swimming pool, the deck and an outdoor kitchen is the “social” hub where the family members interact each other and enjoy the outdoor activities.
Position on the land of each house was chosen to minimize the impact on the site and to keep all the existing trees, area built has been reduced to the minimum to meet the needs required.
Each block has a free space opened maximum to the garden trough large glass frames on the ground floor. The first floor, with three bedrooms, is entirely wrapped with both fixed and openable woven panels.
With the palm leaf roof, used here as an external insulation layer and the woven timber panels, used for the façade and the cabinetry partitions inside, this project brings in harmony the local Khmer-Vietnamese culture and the idea, more contemporary, of a relaxing hideaway retreat, whiteout compromising.






























