Bessancourt Hall
ARCHITECT IN CHARGE
Fabien Duchene Architects
CONSULTANTS FLUIDS
Ideel Environnement
BUDGET TOTAL
1 510 000 Usd / 1 090 000 €
LOCATION
Bessancourt, France
CATEGORY
Community Center, Cultural Center
URBAN APPROACH
The study site is a vacant lot owned by the city of Bessancourt and located a few hundred meters away from the town hall. Its location is in continuity with its historic downtown.
The site is marked on the north by the imposing presence of a church. The urban environment of the study site is very mineral, the stone church is massive and reinforces this homogeneity.
The building distribution on the site is diffuse and invites us to propose a singular object, an additional object that can join the existing group.
ARCHITECTURAL APPROACH
To maintain the current urban order and avoid all disorders, we set up a gradual insertion through three sequences .
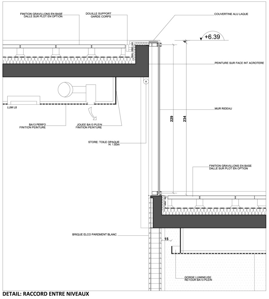
First contact, a translucent curtain wall drawing in space the contours of a patio , strengthening the cultural character of the building .
Finally , farer, the highest part of the project, 6 meters, connects our project to the neighboring buildings.
By creating this intangible patio we create a point of urban concretion , an attractive singularity. The formal limit of the building is blurred. Protected from wind and noise, this space is invested by children and parents.
Our project works on a sum of ambiguities. The project is open but defensive, telluric but fully glazed in the heart , brutalist in some ways, but gentle avoiding any frontal posture.
























