
Mary Place, All Hallows’ School
MARY PLACE, ALL HALLOWS’ SCHOOL
Wilson Architects
ACOUSTIC ENGINEER
Arup, Simon Ham
CONSTRUCTION TEAM
Badge Pty Ltd
MANUFACTURERS
Ace Stone + Tiles
MECHANICAL ENGINEER
Arup, Liam Murray, Andy Bradley
LANDSCAPE ARCHITECT
Wilson Landscape Architects, Beth Wilson
ELECTRICAL ENGINEER
Caitlyn Young, Arup
LIFT ENGINEER
Arup, Paul Sullivan
PROJECT MANAGER
Cpm, Robert Timms
CONSTRUCTION MANAGER
Ashley Kruck
SURVEYOR
Michael Jolly, Michael Jolly Surveys
TOWN PLANNING
Steve Craven, Craven Ovenden
HERITAGE ENGINEER
Michael Kennedy Architect
STRUCTURAL ENGINEER
Grant Gowan, Ken Gallie, Cardno
HYDRAULIC ENGINEER
Greg Hamilton, H Design Pty Ltd
ARCHITECTURE PRACTICE TEAM
Phillip Lukin, Hamilton Wilson, Daniel Tsang, Sarah Mahon, Maddie Zahos, Shaun Purcell, Nick Lorenz, Sarah Russell
LOCATION
Fortitude Valley, Australia
CATEGORY
Educational Architecture, Schools
Text description provided by architect.
WHAT WAS THE DESIGN BRIEF?
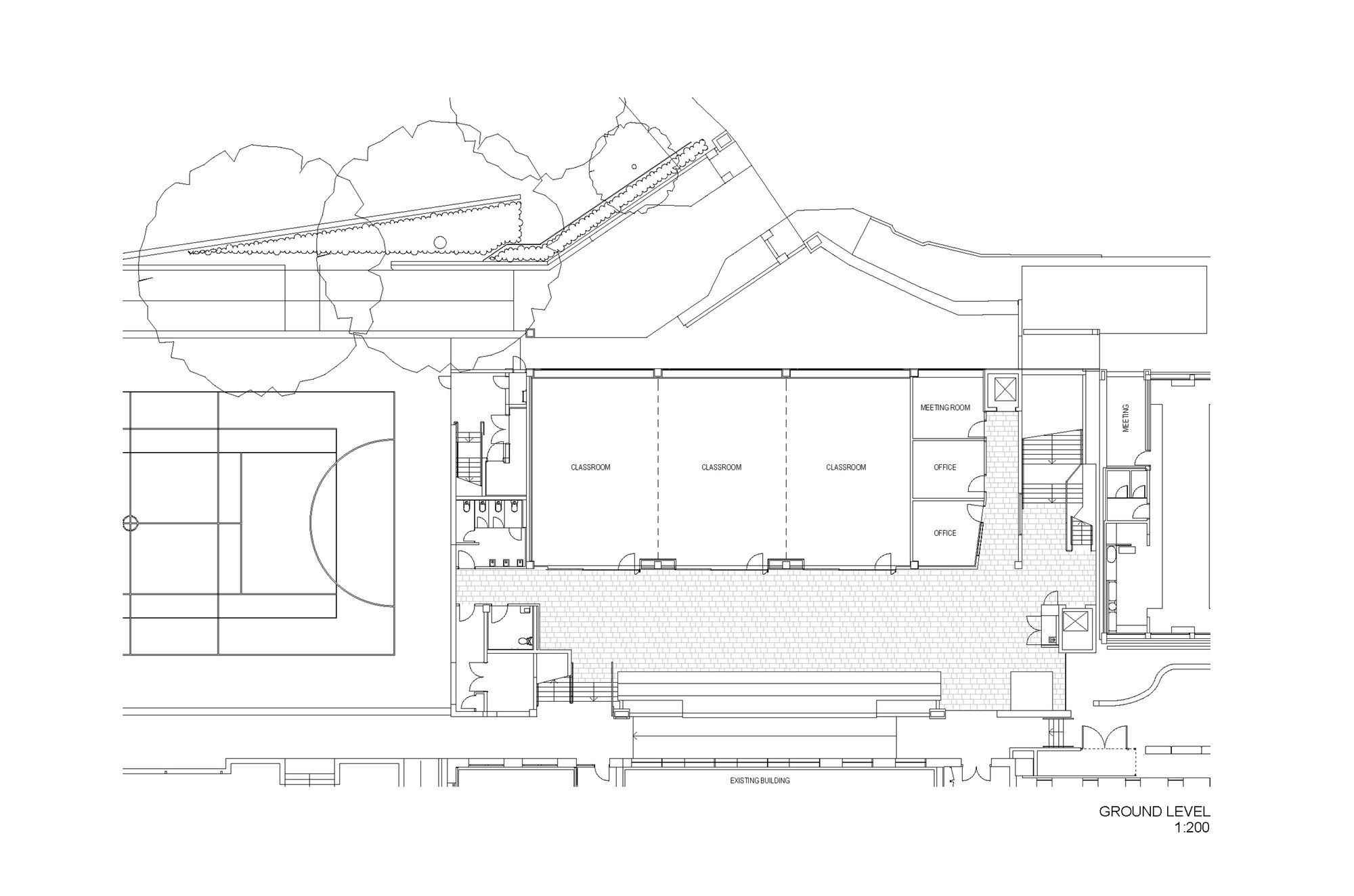
The design brief grew out of a review of the school’s masterplan, which looked at future building sites for the School to incorporate 15 new classrooms to facilitate the addition of Year 7 to high school in Queensland.
The challenge was to place a new five-storey contemporary classroom building in very close proximity to some of the oldest school buildings in Brisbane.
WHAT WAS YOUR DESIGN INTENT ON THIS PROJECT?
For the students, we wanted to encourage flexible and open learning behaviour with the classroom arrangement, with plenty of windows and whiteboards.
We also wanted to create a vibrant, cool courtyard space, to encourage interaction and extend learning opportunities outside the classroom.
Our design intent for the school as a whole was to create a new and contemporary front entry on Kemp Place, while reducing the apparent size of the building using a vine screen and coloured sunshade.
We also wanted to maximise covered circulation into and through the school, and increase outside spaces for student interaction.
Looking to the future, it was important to respect the heritage context by setting up a direct relationship between the new building elements and the layered history of the place. We also wanted to reduce energy consumption over the long term by installing a precinct CHW tank, chilled using off peak power.
The façade design is essential to the character of the school. How does the design connect the old with the new, and play with the scale of the building?
- As a heritage site, the school’s rear facades have, over time, become one of its most prominent public elevations.
The design strategy acknowledges this, at the same time working with the framework of hierarchal facades on the heritage buildings where each face shifts its architectural language dependent on the spaces they address.
The new building envelope responds to each of its elevations with a rotational tectonic, as if part of each facade is being pulled around and connected to the next.
- The street composition re-scales the five-storey building into a two-storey object floating over a two- storey-high garden screen. Garden and building screens are devices used in the past by the nuns to provide privacy, security and shade.
- The western facade responds to the scale of the 1940 University Wing and composes an elevation of aluminium screening lightly suspended like the famous Queensland Thurlow Veranda Blind. - Where the new building engages directly with the facade of the old building (essentially the rear wall of the school) the facade is theatrically edited back.
Rather than reveal the whole of this rather mundane but important facade the new works instead frame a fragment of it with a proscenium arch. This places the façade as a backdrop to the daily play of student interaction in the courtyard of Mary Place.
HOW DID YOU OVERCOME THE CHALLENGES ASSOCIATED WITH THE HERITAGE-LISTED BUILDINGS?
One of our main challenges was to allay concerns about maintaining the special significance of the listed site and buildings. The project team, including heritage architect, Michael Kennedy, worked collaboratively with the Queensland Department of Environment and Heritage Protection (DEHP) and used extensive 3D modelling to explain the project.
Each face of the building has particular relationships with its surroundings; these were developed to a high degree during the design phase, which gave DEHP confidence in the final result. The new building is also very closely placed against a significant listed building and yet the ‘proscenium arch’device is respectful and sympathetic.




















