YEAR
2016
LOCATION
Acassuso, Argentina
CATEGORY
Houses
Text description provided by architect.
The house is built on an irregular corner lot, with 297 m2, located in a low-density residential neighborhood in Acassuso, San Isidro, on the north corridor of Gran Buenos Aires.
According to an existing swimming-pool that had to be respected, the house lies on the largest side of the plot, releasing the corner and opening to the best orientations.
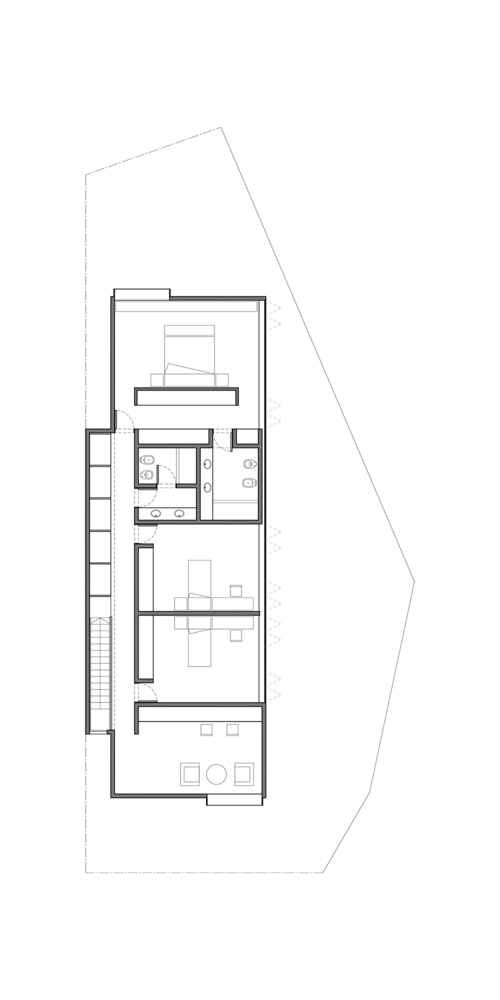
Because of the program requirements, a basement was built to place services and a music room.
The ground floor holds the social programme, including the living-room, dinning-room and integrated kitchen, apart from the public services.
An upper cantilevered volume generates two big semicovered areas: the gallery, related to the social area of the house; and a parking space, which can de accessed from Fernandez Spiro street independently. At the same time, that volume includes two bedrooms, one suite and a study on the first floor.
The skin that protects the main façade, facing north, is made by a system of mobile wood blinds that, when closed, filter the light that enters into indoor spaces, giving shade and privacy to the rooms.
Each part of this brise-soleil works as a system of folding doors, able of staying open individually according to the needs of the users.
In order to minimize maintenance cost and constructive process, the material chosen was exposed concrete. We used 2”x4” pine wood boards for formwork, thus getting the texture that characterizes the surfaces.ar


























