
Art Museum on Market
ARCHITECTS
Scenic Architecture Office
TIMBER CONSTRUCTION
Suzhou Crwonhomes Wood Structure Technology Co. Ltd.
STRUCTURAL CONSULTANT
AND Office
STEEL CONSTRUCTION
Shanghai Yatai Construction Group Co. Ltd
STRUCTURAL TEAM
Zhun Zhang, Chongchong Zhang
LOCAL DESIGN INSTITUTE
Hongzheng Engineering Group Co. Ltd.
DESIGN TEAM
Xiaofeng Zhu (PIC), Xinjia Zhuang (PM), Liming Pi(PA), Xiaosheng Lin, Junyuan Wang
CLIENT
Xitang Zhilin Cultural Development Co. Ltd
LANDSCAPE DESIGN
TOPO Design Group
PHOTOGRAPHS
Shan Liang
AREA
2500 m²
YEAR
2021
LOCATION
Jiashan, China
CATAGORY
Gallery, Market
Text description provided by architect.
The Xitang East Area under construction is the eastward expansion of the old town of Xitang, including nearly 100,000 square meters of tourist retail, hotel, visitor center and cultural facilities.
After completion, it will become a new entrance at the northeast of the old town. Xitang East Area is divided by a river into two phases.
As the key point of Phase Ⅱ, Building One locates at the southwest corner of the northern site, facing the river on the west and south sides to overlook the old town and adjoining the Phase Ⅰretail blocks on the other side of the river.
The old town of Xitang has strict urban planning requirements for the new buildings in the scenic area. In addition to the height limit, sloping roof, small blue-black tile, black-white & gray tone and wood color are all prerequisites for the design.
What kind of program should be planned in the core area of the East Area riverfront? What kind of form-type should be used to meet the needs of function and establish its landmark while complying with the requirements of townscape? It is the answer to these challenges that dominate the entire design process.
The basic urban fabric of the pedestrian streets in East Area is the retail courtyard on the ground and first floor and gable-roof-house hotel courtyard on the second floor.
On top of this "base color" are the special landmarks scattered in the area, such as the tourist center at the center, the Nijigen Activity Hall at the northeast corner, and the Naera Boutique Hotel PhaseⅡat the northwest corner.
As one of these landmarks, Building One especially needs to attract people to stay and participate in long time purposed activities, thereby forming an agglomeration effect and becoming the highlight of the tourist experience in the entire eastern area.
After thorough studies and discussions, a mixed function of market and art gallery became the consensus of the client and the design team, that is to create an open and flowing market space on the first floor to accommodate the organic farm market, creative bookstore, coffee shop, restaurant and hotel reception while create a multifunctional art gallery on the second floor to host exhibitions, forums and cocktail parties.
We translated the program and style regulations into the design commitment of space and image, which became the basis for the tectonic system.
As per the obvious difference between the programs of the upper and lower floors, we continued the stacking pattern of frame and gable roof structure used in the pedestrian street, but reversed it upside-down with the gable roof structure at the bottom in order to acquire particularity with coordination.
The Chinese overhanging gable roof supported by the white gable wall is a traditional residential form-type in the southern Yangtze River Delta, and a single roof can be replicated continuously to cover a larger area.
We extracted the structural form of Y-shaped columns from the geometry of the continuous gable wall to support the upside-down triangular truss roof, forming a linear unit with a width of 6.3 meters and a length of nearly 52 meters.
The space in the truss is used to install MEP equipment, and a continuous undulating indoor space is formed under the truss. 6 linear units are connected parallel to form the roof covering the ground floor market, echoing the continuous ancient town settlements. The freely distributed Y-shaped columns ensure open and flowing space for the market, making sharable and flexible space possible for diversified functions.
At the east and west ends, some of the Y-shaped columns are replaced by V-shaped gable walls with diagonal braces inside, which solve the seismic force and establishes a connection with the traditional gable walls with inverted slope.
The art gallery sits on the market, and if we had continued to use the language of gable roofs and unit settlements, we would easily achieve harmony in style, but it would be difficult then to provide the necessary landmark identity and large interior space.
Therefore, we tried to construct a single, relatively abstract form to house a column-free space. The connection with tradition is no longer limited to the figurative form, but draws inspiration from wooden craftsmanship to pursue a more complete iconicity. In the end, we extracted the cross-bearing structure from the lantern craft of Xitang.
The big roof is about 30 meters long and 20 meters wide. 92 short glulam beams cross and bear with each other to form a slightly arched shell, which makes the large-span structure more reasonable and solves drainage of the roof with its slope simultaneously. The weight of the wooden roof is transferred to the surrounding wooden pillars through a ring of horizontal steel frame.
The group of columns is composed of X-shaped oblique columns three-dimensionally composd by inter-inserted glulam poles. Providing continuous supports in both the vertical and horizontal dimensions, this column group has a strong resistance for lateral force. It not only bears the horizontal thrust of the arch roof beams and makes slender column size with a section of 160X160mm possible, but also provides side resistance for the glass curtain wall at the inner side of the column.
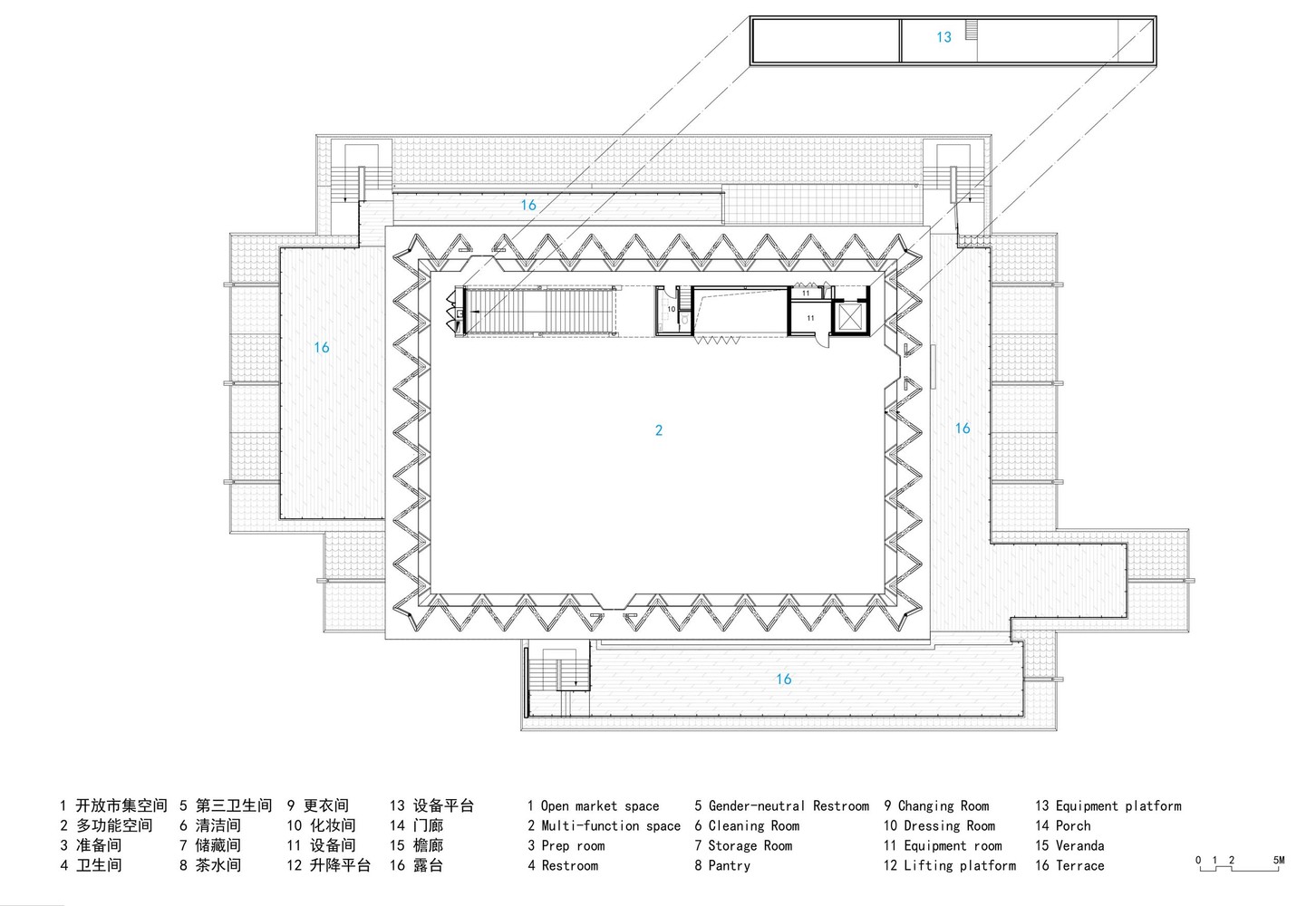
On the second floor, we concentrate the stair, elevator, large lifting platform and other equipment in a long box on the north side of the gallery to keep the purity of the main space.
The outward folded floor-to-ceiling curtain wall is made of half- glazed glass with gradual fogging, and an adjustable membrane is set under the diamond-shaped skylight on the roof to offer the art gallery soft natural light during daytime, while the warm light can be shed at night, making it a glamorous "super lantern" in the east district of Xitang.





























