
Building D(emountable)
ARCHITECTS
Architectenbureau Cepezed
CLIENT
Jan Pesman
CONSULTANT MECHANICAL & ELECTRICAL ENGINEERING, CONSULTANT BUILDING PHYSICS, SUSTAINABILITY, ACOUSTICS AND FIRE SAFETY
Nelissen Ingenieursbureau
CONTRACTOR GLASS FAÇADE
Waddinxveen, Ifs Building Systems
STRUCTURAL ENGINEERING
Imd Raadgevend Ingenieurs
WALL SYSTEMS
Qbic, Alphen Aan Den Rijn
CONTRACTOR GLASS FAÇADES
Ifs Building Systems, Waddinxveen
WOOD FLORING
Metsä Wood, De Groot Vroomshoop
STAIRS
Eestairs, Barneveld
CONTRACTOR ROOF
Roof Protection, Arkel
PANTRIES
As Projectinrichters
CONTRACTOR CEILINGS AND CUSTOM INTERIOR WALLS
Contractor Ceilings And Custom Interior Walls
CEILINGS & CUSTOM INTERIOR WALLS CONTRACTOR
Contractor Ceilings And Custom Interior Walls
CONTRACTOR ROOF
Roof Protection, Arkel
CONTRACTOR STEEL CONSTRUCTION
Voortman Steel Construction, Rijssen
ELECTRICAL & MECHANICAL INSTALLATIONS CONTRACTOR
Kuijpers Utiliteit Midden-noord B.v, De Meern
LOCATION
Delft, The Netherlands
CATEGORY
Installations & Structures
Text description provided by architect.
Building D(emountable) is a modern, sustainable and fully demountable structure on the site of a historic, monumental building complex in the center of Dutch city Delft. This site is owned by cepezed, an agency with expertise in the development, the design and the realization of buildings.
Creative Cluster. Cepezed acquired the complex with former laboratories from the Delft University of Technology in 2012. It transformed the monumental buildings into a creative cluster with housing for various companies in the creative sector, including the office itself. However, the only non-monumental building on the site was in poor condition.
It has now made way for the new construction of Building D(emountable). Again, this is a full-blown own development of cepezed and again it is intended for companies in the knowledge-intensive creative industry. It houses an app and website developer 9to5 software and a game developer Triumph Studios. Circular Prototype.
The Netherlands has set itself the goal of rendering all construction activities fully circular by 2050, while cepezed has a long reputation for modular and demountable design and construction. Moreover, director Menno Rubbens of developer cepezed projects is part of the national program committee to achieve the national circularity goals.
Partly for those reasons, Building D(emountable) also had to become an example project on cepezed’s own grounds. Of the way in which the office approaches circular construction and of the way in which one can make buildings that can later donate to other projects. Or even be reused elsewhere in their entirety.
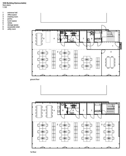
Lightweight, Flexible and Gas-Free. Building D(emountable) has exactly the same footprint as the existing building that was no longer good and was demolished. It measures 11 by 21.5 meters and has four floors of about 200 square meters of lettable floor area each.
In addition to being demountable and mountable, the structure is also super lightweight: the use of materials is kept to an absolute minimum. The building is also completely flexible in its arrangement, has no gas connection and is equipped with heat recovery.
The ground floor is made of poured concrete, but otherwise, all building components are modular and dry mounted. Supreme simplicity has been an important principle in the design. Steel, wood, and glass. Building part D(emountable) consists of a rationally optimized building kit with steel, prefabricated and extremely slender main supporting structure.
The structural floors and roof are made of lightweight wooden Laminated Veneer Lumber (LVL) elements that are also prefabricated. These have a compact height and the installations are integrated into them.
The ribs of the LVL elements remain fully visible and are part of the building’s aesthetics. The screed is biobased and consists of gravel-like granules in a cardboard honeycomb structure with gypsum fiberboards on top.
The entire screed is dry and easily removable again. The PVC finishing floor is made of partly recycled PVC. The building has no window frames: the double-layer insulating glass is mounted directly on the steel structure.
For that reason, the steel construction is provided with welded screw profiles. The steel builder had to comply with the very limited tolerances of the façade builder, which was no small task.
The façade is largely transparent, which makes for strong sightlines and relations between the inner and outer worlds. Vertical slat strips can be opened for natural ventilation. The down-to-earth, modern building strikingly and interestingly contrasts with the historic existing buildings.
This also renders it illustrative for the way cepezed approaches the combination of new and historic construction. Climate. The entire building functions as one large fire compartment. As a result, little material was required for fire-resistant measures; only the stairwell has a fire-resistant partition. All climate control works on the air.
On each floor, air conditioners that also take care of heating are integrated into the ceiling. In addition, the building is equipped with a heat exchanger. Roller blinds provide sun and light protection.
Integral Process. Construction took place in an extremely short period of just over half a year. With the positioning of the elevator shaft, the building even topped out in an hour after the works started. The complete structure of the steel skeleton and wooden floors was put together in three weeks.
This was possible, among other things, because of an integrated process with thoughtful preparation and close, integrated cooperation between the various cepezed disciplines; from the project developers to the architecture and interior designers and of course the implementation coordinators.
With short communication lines, all specialists are housed under one roof, which has not only improved the efficiency of the process, but also the level of coordination and thus the quality. There was a close collaboration between the designers and the construction coordinator throughout the complete process, with key figures from the design also being part of the implementation team.
The cooperation with the external partners is also worth mentioning. With a lot of these, cepezed also often collaborates on other projects. As a result, all parties were already well attuned to each other.

























