
M WOODS Art Community
ARCHITECTS
B.l.u.e. Architecture Studio
DESIGN TEAM
Shuhei Aoyama, Yoko Fujii, Haoxiang Rong, Nailun Chen, Yujia Yang
YEAR
2019
LOCATION
Beijing, China
CATEGORY
Gallery, Renovation
BACKGROUND
The project site is located in Qianliang Hutong, Longfusi Street, an old downtown area within the Second Ring in Beijing, China. It is adjacent to famous urban landmarks in Beijing such as Jingshan Park, Beihai Park, National Art Museum of China, Beijing People’s Art Theatre.
Originally built in the Ming Dynasty, Longfu Temple was a prosperous area where commercial atmosphere meets art activities until it experienced a fire accident in 1993.
Thereafter, a number of land plots outside the Third Ring Road in Beijing were developed for innovative commerce and culture, such as Sanlitun, 798 Art Zone, etc., which led to the gradual economic recession of Longfu Temple area, a traditional downtown region inside the Second Ring Road. Longfu Temple area, as a result, gradually faded from Beijinger’s memories.
As a significant part of the revitalization plan of the Longfu Temple area, M WOODS Art Community Renovation Project aims to inherit the historical and cultural traditions of the area while exploring more opportunities and potentials.
The site was originally the staff canteen of Longfusi region. The structure of the original building is simple and the internal space is quite open, which is suitable for the renovation of an art museum project.
Starting with the idea of blending modern elements into the historical district of Hutong, we tried a renovation design combining both localization and experimentation.
SPATIAL STRUCTURE
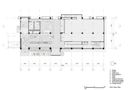
Our design divides the overall space of the building into four parts: exhibition space, a rooftop terrace that provides rest space and temporary events, a 1st floor coffee shop, and a basement livehouse.
The exhibition space is divided into two areas – above and under ground areas. We then divide them into several different galleries based on the differentiation of the area, height, and floor materials.
The span height varies from 2.2 meters to 7 meters. These features are beneficial for exhibiting different types of artworks with different specifications. Meanwhile, they can bring people unique visiting experience.
THE CIRCULATION
With the increasingly rapid pace of modern society and the endless stream of calls and messages, the modern cities today are providing less space for us to see and enjoy an artwork in peace in our daily life.
Considering that M WOODS Art Community is an art center in the core region of the city, we hope to help switch the mood of the audience through the designed circulation to achieve a better art experience.
After getting tickets, the visitors will first get to the basement level through a passage. The area was the civil defense region of the original building featuring narrow corridor and low ceiling.
We decide to retain the original rough concrete walls and keep the light and temperature relatively low. Besides, the seven connected rooms with similar size bring the audience a maze-like experience. Due to the thickness of the walls and the floor slab, no phone signal can be received there.
After passing by, the visitors will suddenly see the stairs leading to the exhibition space on the 1st floor. The two continuous but distinct environmental experiences create an illusion for people.
In addition, the lost of spatial positioning makes people to temporarily forget the impetuousness of the outside world and regain the calmness of mind to enjoy exhibition.
The visitors will pass through the gallery on the first floor to the second and third floors. Accordingly, the space and the ceiling height gradually increases; the natural lighting and outside scenes are revealed.
Simultaneously, the newly opened small windows and terrace on the stairway walls and at the west-side gallery of the museum are interspersed with the adjoining Hutong living atmosphere of the Beijing’s old city in the process of the visitor’s experience.
M WOODS Art Community becomes more characteristic because of the rich, diverse and complete experience the overall space provides.
THE FAÇADE
As an independent, not-for-profit art institution, M WOODS has a strict cost control for the renovation project. Instead of choosing common façade materials, we discover a new material – galvanized steel sheet, and we use it to create a form of folded texture.
Galvanized steel has fairly good corrosion resistance and unique surface texture, which is mainly used as enclosures and ventilation ducts. The cost is therefore effectively controlled. The machining technology we first tried was difficult for the material to achieve expected random folded effect, so that we then decided to use the method of handcrafting.
During the manual experiment, through testing galvanized steel sheets with different thicknesses, we realized that the too-thin sheets are easily to break after bending, and the too-thick ones are too hard to make by hand. In the end, we choose 0.3mm galvanized steel sheet.
In terms of the selection of the texture of galvanized steel, we compared many factories in consideration of the difference among processing methods of the sheet. In the construction phase, in order to make the façade possess a rhythmic change, we first identified five different levels of crease to transition the effect.
Meanwhile, the designers cooperated with the workers to process the plate, finally presenting a kind of façade effect that can hardly be achieved by mechanical processing.
THE STARTING POINT OF URBAN RENEWAL
At present, restaurants, bars, coffee shops, shared work space and other formats have been introduced around the project site, attracting more people from all over the world to visit, some even start to live and work at this area for a long time.
The renewal of the M WOODS Art Community not only gradually transforms the existing state of life of the locals, making the old city inside the Second Ring in Beijing more youthful and vibrant, but also awaken the cultural vitality of the century-old region.


















































