Al Jazeera Network Studio Building
ARCHITECTS
Veech X Veech
LEAD CONSULTANT
Ove Arup & Partners
ARCHITECT OF RECORD
Qatar Design Consortium
ARCHITECTURAL DESIGN, BROADCAST STUDIO DESIGN, LANDSCAPE DESIGN
Veech X Veech
MAIN CONTRACTOR
Gulf Contracting Company
SET CONSTRUCTION
MCI Studio Hamburg
QUANTITY SURVEYING
Northcroft
CIVIL, STRUCTURAL, MEP, GEOTECHNICAL, FAÇADE, FIRE, ACOUSTICS, ICT/COMMUNICATIONS, STUDIO PRODUCTION LIGHTING, ARCHITECTURAL LIGHTING
Borgos Pieper Architects
YEAR
2016
LOCATION
Doha, Qatar
CATEGORY
Institutional Buildings
Text description provided by the architects.
Following the launch of the broadcast facilities VXV designed for Al Jazeera Media Network in London’s landmark ‘Shard’ building, VXV were commissioned to design new facilities at the network’s headquarters in Doha.
The new Network Studio building and Arabic Newsroom studio were built to commemorate the network’s 20-year anniversary in November 2016.
Al Jazeera became one of the industry’s most influential multichannel networks worldwide, reaching more than 310 million viewers in over 100 countries.
AL JAZEERA NETWORK STUDIO BUILDING
VXV’s new design was conceived as a landmark structure annexed to Al Jazeera’s pre-existing headquarters.
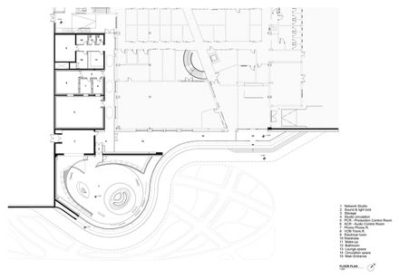
The new development contains 1,650m² of studio space and support areas, with 7,450m² of landscaped public space to be realized in 2018.
Shaded by a free-standing canopy cantilevering from a 36m lateral structural support, the open-plan design eliminates walls, partitions and columns to provide uninterrupted views through the studios and public areas.
AL JAZEERA NETWORK STUDIO
Situated at the core of the new building, the 400m² studio features 360º panoramas throughout the studio and exterior walls.
The broadcast studio design goes far beyond conventional ‘black box’ sets, making the vistas seen through the glass facade part of the newsroom’s identity.
Polarization filter panels balance the natural light, while integrated LED lighting, imaging technologies, immersive graphics and Augmented Reality add high-definition digital content to the broadcasts.
The architecture is responsive, reconfiguring into a range of sets with distinct programme identities. VXV created interior features that reflect the curves and asymmetry of the calligraphy used in the network’s logo, which subtly reinforce the Al Jazeera brand.
Al JAZEERA ARABIC NEWSROOM
This ground-breaking hybrid space comprises a broadcast studio and production workplace galleries that provide egress to other parts of the site.
The 1,100m² studio contains three individual sets adjacent to open-plan areas with space for 100 workstations. The architecture contains 3D immersive graphics and responsive LED surfaces that reconfigure lighting levels and colour tones as new segments are broadcast.
Other technologies capture contextual metadata collected during newsgathering and synchronise it with on-screen graphics and video clips integrated into the main 35m video wall installation.
These projects provide a compelling new vision for how architecture, studio design, broadcast media and digital technologies can make production and distribution faster, responsive and more efficient.
SET OF THE YEAR AWARD
The Al Jazeera Studio 14 in Doha by Veech X Veech won this year’s Set of the Year Award in the “International” category.
The Set of the Year Awards, conferred by NewcastStudio, the most important trade platform for the broadcasting industry, honor the best scenic designs in broadcast television.






























