
Action for Social Advancement (ASA) Head Office
ARCHITECTS
Biome Environmental Solutions
CLIENTS
Action For Social Advancement (Asa)
MANUFACTURERS
Otis, Sketchup, Ankamatti Terracotta Artist, Autocad, Cool Tech Enterprises, Madhya Pradesh Urja Vikas Nigam Limited
MEP CONSULTANT
Hmn Techconsultants Private Limited
ARCHITECT IN CHARGE
Vishwanath, Anurag Tamhankar
DESIGN TEAM
Chitra Vishwanath, Anurag Tamhankar, Ramya Ma
YEAR
2019
LOCATION
Bhopal, India
CATEGORY
Office Buildings
Text description provided by architect.
Action for Social Advancement (ASA) is a nonprofit development organization whose mission is of ensuring livelihoods through development services with emphasis on natural resource development.
Water is one of the key sectors ASA has been involved in, in villages of Madhya Pradesh, Chhattisgarh, Bihar and Jharkhand. In its head Office in Bhopal, ASA was keen to showcase its ethos of ecological principles.
The client brief required that the space be inclusive and foster collaborative working culture. Site is in a development which was formerly an agricultural land.
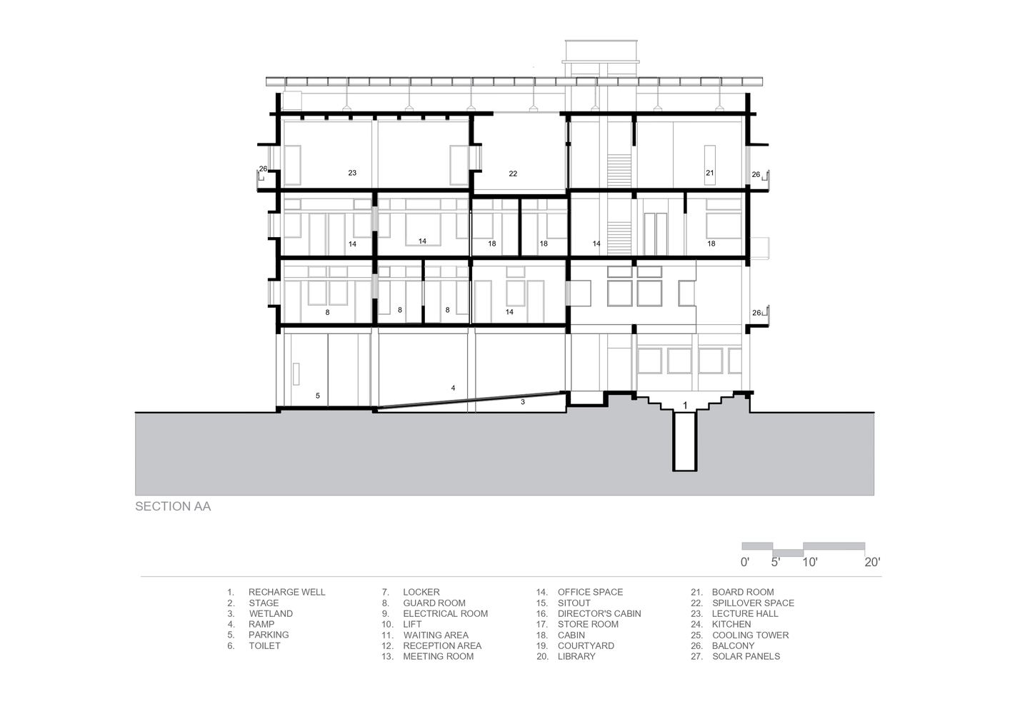
Land available for the building is situated at the lowest level of the plotted development and tends to get waterlogged.
Added to it the nature of Black Cotton soil (low water percolation rate) and the inadequately designed outflows made the water stagnate for a long time.
We took this water-logging aspect as a challenge and instead of filling and raising the land it was decided to welcome the water into the plot.
The building was raised up by a floor and the area left below was converted into a wetland and a stepped well. This led to avoidance of flooding and replenishment of shallow aquifer.
Building upon the social values of ASA, this stepped well was designed as a gathering space for the community, around.
Passive building planning, energy efficiency, water management and biodiversity were pivotal to the design. Features like deep overhangs and courtyards while reducing the heat gain and glare ensured ample amount of daylight within.
Eastern and western facades were designed to have skewed windows to cut the glare of horizontal sun without losing daylight and fresh air.
Landscaped court on the top floor and common court and balcony spaces in all floors were brought in to facilitate interactions spillover space for workshop and board room respectively.
These spillover spaces also bring in the sunlight deeper into the building along with fresh air.
Insulating the roof was a crucial part of the passive cooling strategy, which was done by higher ceilings, and use of the local brick bat coba(thick layer of broken bricks on top of the roof) for weather proofing course.
The RCC framed structure with a mix of wire cut bricks and composite fly ash bricks made by adding site soil. The bricks were manufactured locally by mixing available black cotton soil with fly ash, cement and lime.
Dedicated spaces have been designed for indoor plants and herbs. With native fruit growing plants in the open land the whole building has edible landscape.
The wetland provides for nesting spaces for birds in the summer with its aquatic and semi-aquatic flora. Operational energy usage was reduced through use of LED fixtures, energy efficient fans and air-cooling system.
This has shown a reduction of energy consumption by 2/3 rd compared to the previous office space occupied by ASA.
All the energy is produced by 20kVA solar PV panel system installed at Rooftop. Rainwater harvesting provides for water for four months of the year and excess from the storage is used for recharge. Water efficient fixture have also reduced consumption of water considerably.



































