Paju Unjeong Complex
CONTRACTOR
Yigak Construction Company
COLLABORATOR
Yein Architecture Design Group
PHOTOGRAPHS
Kyung Noh
AREA
465 m²
SITE AREA
312.8 m2
YEAR
2016
LOCATION
Paju-si, South Korea
CATEGORY
Mixed Use Architecture
Text description provided by architect.
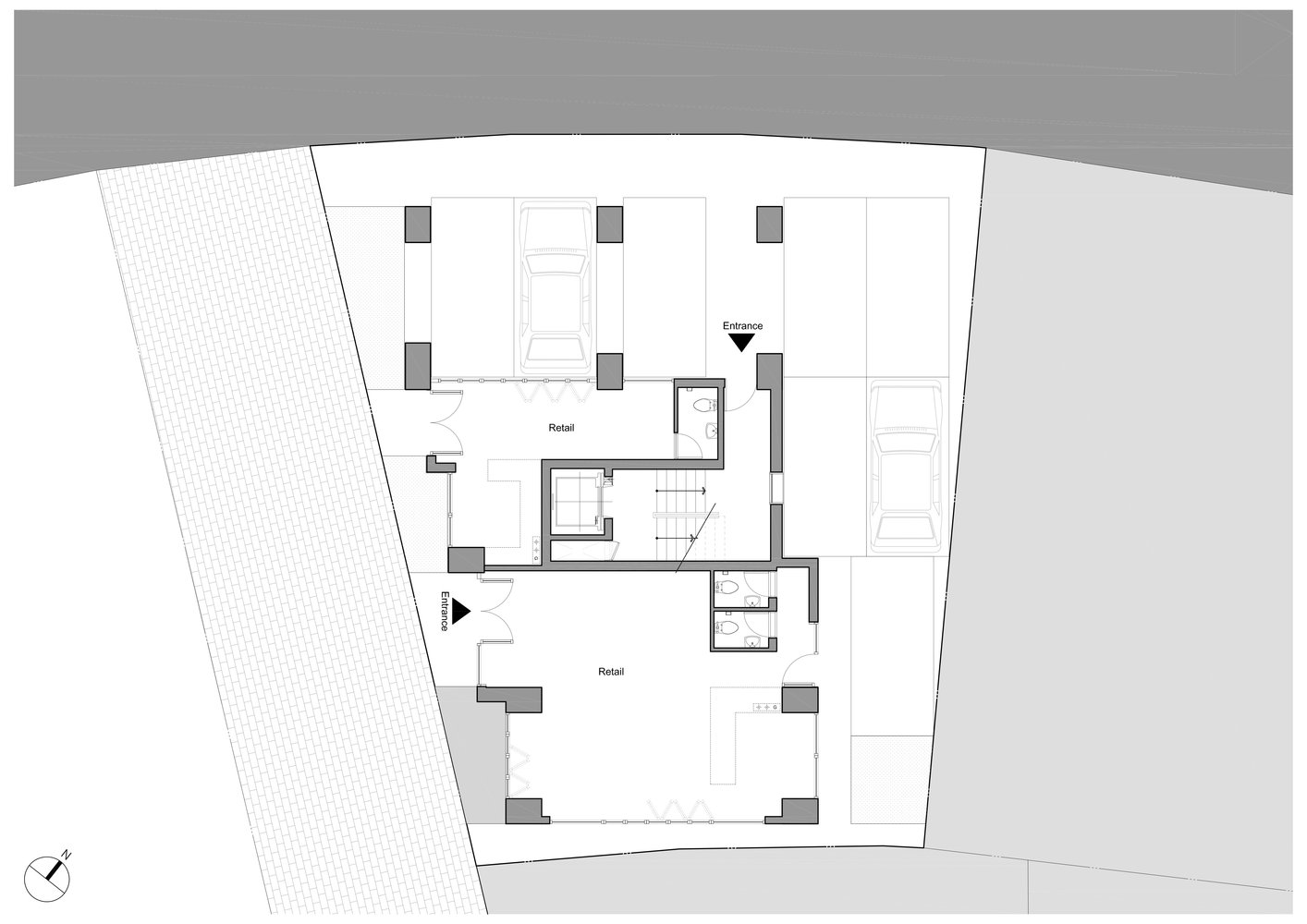
It is located in new development area in Paju city called Unjeong. It is 4-story building with attic area, containing 2 retail units and 5 residential units(4-simplex and a duplex).
Clients requirement, maximizing area to rent under current architectural regulation inspired to come up with a pitched roof system over residential and core area.
The system give iconicity to not only roof top but also the building itself, applying same pitched design language over in-lined windows vertically.
White colored aluminum panel and stuco flux used to cover exterior of the building, being a background of black in-lined windows with pitched top as if blue sky being a background of pitched roof of the building.






























