Venados 22 House
ARCHITECTS
Estudio Am Arquitectos
MANUFACTURERS
Autodesk, Enscape, Bticino, Cuprum, Helvex, Teka
LEAD ARCHITECTS
Gerala Ángeles Cherit, Santiago Martín Del Campo
YEAR
2019
LOCATION
Cancún, Mexico
CATEGORY
Houses
Text description provided by architect.
The Venados 22 house is a sober sample of contrasts between blind canvases and rugged textures. On the exterior, this can be seen in the facades with blind chukum-plaster walls against carved and handcrafted walls of regional stone.
Accents of bare concrete are also present in structural elements and in the window frames, thus generating framed pictures with a vegetal background.
The terrace and the garden revolve around a wooden deck over the black marble pool, inviting users to recreation and rest, with a waterfall that provides peace with its sound.
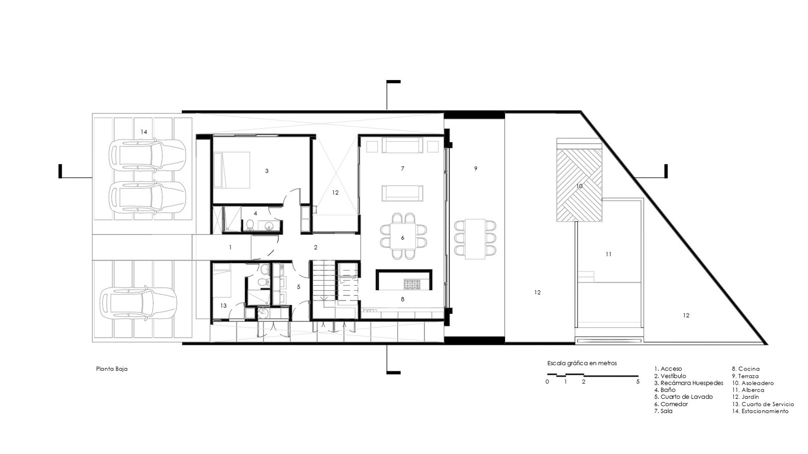
The interior of the house includes an architectural program for a family of four, with a guest room on the ground floor and three bedrooms, a TV room and a play area on the top floor.
Marble floors, panelings, and white walls help the elements of tzalam-wood to stand out with their warmth and natural tone.
This architecture of straight lines and simple materials is a combination of function and design.






























