AER La Pampa Building
ARCHITECTS
Cubero Rubio
PROJECT AND DIRECTION
Juan Pedro Rubio, Agustín Cubero
COLLABORATORS IN CONSTRUCTION MANAGEMENT
Gabriel Schesak, Brian Gorban
COLLABORATORS IN PROJECT
Juan Pablo Castellano, Maia Lax, Romina Garino, María Pellegrini
OTHER COLLABORATORS
Leonardo Trabattoni, Melanie Doherty, Roxana Chapoñan
INTERIOR
Plan Arquitectura
MANUFACTURERS
Abelson, Abertec, Armaferro, Aserradero Vagol, Barvial, Casas., Cerámica Ctibor, Couceiro, Distribuidora Norte, Energy Safe, Fade Ingeniería, Forti, Marmolería Bustamante, Metalúrgica Potenza, Moncalieri, Palermo Materiales, Quitral, Rjo, Se-co Sistemas Y Soluciones Impermeables, The Flooring Company, +1
YEAR
2019
LOCATION
Villa Urquiza, Argentina
CATEGORY
Residential
Text description provided by architect.
Located in the Villa Urquiza neighborhood on the Donado Holmberg Linear Park and surrounded by a heterogeneous urban landscape –product of a rapidly growing environment with a current category development- the AER La Pampa project is about a medium-density residential building .
It is located a few blocks from the traditional Belgrano R neighborhood, a high-quality residential area in contact with large green spaces.
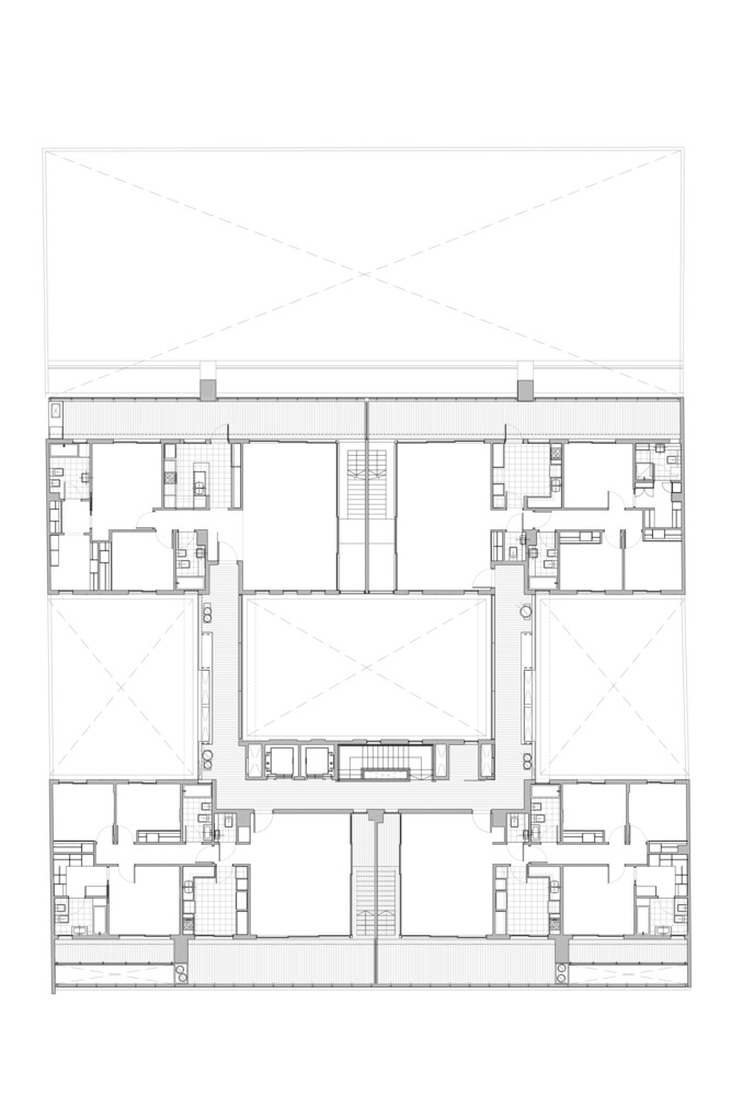
It consists of two volumes with four levels detached from the zero level, facing each other and communicated with each other through semi-covered walkways, which give the complex an avant-garde design and great luminosity.
Its implementation allows, not only to use the virtues of the environment and the land, but also to generate situations that are not normally found in condominium buildings.
The apartments have large expansions in direct relation to the main rooms, with great lighting and ventilation.
Each of the blocks is made up of: four floors that house the housing program with a total of 29 units of 1, 2, 3 and 4 rooms; and own terraces with pool and garden.
On the ground floor there are 40 covered garages and 3 uncovered; and a commercial premises towards the street, will have accesses in its entirety the pedestrian and vehicular accesses.
On the first floor is the common use area of the building - a playground for boys, a gym, a sauna, changing rooms, SUM with a grill, a heated outdoor pool for adults and children, a solarium-.
The whole complex is organized from a central patio and two lateral patios that make up the "urban space" and are crossed and engraved by the circulatory system of pedestrian walkways.
This space decompresses the separation between the two blocks while organizing the access system to the houses.
Each department has a unique personal income, given through a semi-covered bridge, overlooking the common spaces, which generates a feeling of living in an atmosphere very different from the daily days of the city and at the same time provides a unique identity .
Balconies and terraces are an added value in all units, of generous proportions and contemporary materials.
The main facade is a design made of "Acero Corten" material that together with the glass railings of the balconies and the volume of the access, speak of the virtual boundary relationship between the work and the urban space, generating privacy in the units .
It is a type of steel made with a chemical composition that makes its oxidation have some particular characteristics that protect the piece made with this material against atmospheric corrosion without losing its mechanical characteristics.
The oxidation of the steel is carried out in the space of six months and then resists in time, giving a finish that adapts to the dynamics of the place.








































