J Pavilion in Xiaogan
ARCHITECTS
Total Architecture
INTERIOR DESIGNERS
Shang Yi, Bai Yunxiang
FURNISHING DESIGNERS
Ling and Buyao
ARCHITECTS IN CHARGE
Shang Yi, Liu Yun
PHOTOGRAPHS
Rjing-Photo
AREA
831 m²
YEAR
2016
LOCATION
Xiaogan City, China
CATEGORY
Tourism
BACKGROUND
Project is located in Xiaogan, Hubei province. It is the first completed project constructed by Zhuo’er Group in PeachBlossom Town.
Taking advantage of the rich natural resources of the Peach Blossom with an area of thousands hectors in Xiaogan, Zhuo’er Group aims to build a comprehensive idyllic town which includes rustic-style resorts and family-friendly leisure parks.
The villa, an exhibition of the local cultural and pastoral life, is a tourist attraction to the citizens in Wuhan and its surrounding areas.
PLANNING
The J pavilion, as a modeling architecture of the whole scenic spot, is not only a window to display Peach Blossom Town, but also a reception place for a huge number of tourists.
The villa is located in the north part of the village, facing a small pond and a boundless peach forest in its south, and a slightly higher terrain in its north.
The overall layout of the villa consists of three layers. The north entrance will let you have an access to the scenic spot and see the height of two layers.
You will have a view of a broad landscape of the south part when you stand on the terrace located at the third storey of the building. The view of the villa with surrounding villages creates a harmonious atmosphere.
ARCHITECTURE
The tangential dislocation of the three layers creates a variety of balconies, terraces and semi-outdoor gray spaces with different areas.
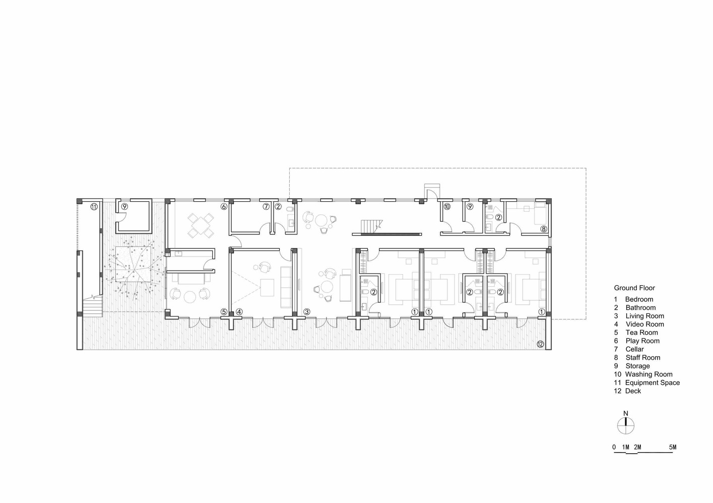
The main part of the first storey is composed mainly by hotel rooms, and the stone elevation facade forms a massive platform; the third storey is an independent cabin consisting of two main bedrooms; and the second storey includes an entrance hall, a dining room, a meeting room and a study room, surrounded by large glasses, in order to create a levitation effect for the cabin in the third-storey. The whole building is modern and yet classical and aesthetic style.
INTERIOR
The interior and furniture design is composed of natural elements in order to harmonize the peach forest, with furniture lavishly decorated with wooden ensemble; decorative textiles made of comfortable cotton and fabric; and ornaments accessorized in ceramic stoneware and preserved materials.
The spacious design breaks the stereotype display and leaves more unique feelings and imaginations to each visitor. There is a hundred Peach Blossom in a hundred people’s eyes.






















