Villa Uliveto
ARCHITECTS
Francesco de Felice, Noname Studio
PHOTOGRAPHS
Francesca Iovene
PROJECT LEADER
Andrea Perego, Francesco de Felice
AREA
170 m²
YEAR
2021
LOCATION
Carovigno, Italy
CATEGORY
Houses
Text description provided by architect.
Carovigno is a small town in the province of Brindisi, in the southern region of Puglia. The house is generated from the natural elements in which it is immersed.
The first consists of a low existing limestone blocks wall delimiting the karst part of the terrain from the natural podium on which the villa stands.
The olive trees, an almost constant presence throughout the Apulian agricultural landscape as well as an invaluable resource, give the second element: abstract sculptures shaped by time and wind.
The project is developed on a land extended from east to west, completely populated by medium-sized olive trees. The house is reached through a gravel driveway that moves to reveal humanized nature only at the end.
The construction takes place while preserving as much as possible the integrity of the existing olive trees, only three of which have been relocated within the land.
A centuries-old olive tree, casually placed in the middle of the natural podium, is the real central point of the building, whose presence determines its footprint.
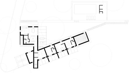
The composition of the building explicitly announces the hierarchy of functions and their reciprocal relationship in space: a cube contains the living area of the villa and intersects a low oblong prism of the sleeping area.
The two volumes are slightly rotated to embrace the centuries-old olive tree, the center of an open terrace and the main relational space as well as the heart of the outdoor life.
The margin between the inside and the outside of the house is expressed in a system of natural light mediation devices.
A vertical skylight that allows the winter light, lower on the horizon, to penetrate inside the house, interrupts the attic between the kitchen and the dining area.
The different geometry of the openings frames the rural landscape giving it always distinct aspects, the vertical pivot opening of the master bathroom overlooks a private patio, a place where the owners can live following the rhythm of nature. The open room at the end of the room slat is a window to the sky.
The house is characterized by a rigid geometry of pure forms covered with white lime and stands out against the twisted and absolute landscape of the olive grove.
The Apricena stone, a limestone material extracted on the slopes of the Gargano with shades ranging from beige, ivory, and pink, was used in different parts of the house and declined in its surface variants.
It runs to the tumbled tiled floor, surrounds the windows with polished slabs, marks the access thresholds with bush-hammered slabs, and is used as an internal Palladian cladding.
The furnishings do not follow a single stylistic line but belong to distant "worlds" which, surprisingly, manage to dialogue in harmony, describing the cosmopolitan soul of the owners.




























