
Homerton College Dining Hall
ARCHITECTS
Feilden Fowles
STRUCTURAL TIMBER
Constructional Timber
ARCHITECTS IN CHARGE
Edmund Fowles, Eleanor Hedley, Akshara Pulpa, Rory Allen, Ben Higham, Nick Crane, Matthew Glen
MAIN CONTRACTOR
Barnes Construction
PROJECT MANAGEMENT
Ingleton Wood Martindales
STRUCTURAL ENGINEERING
Structure Workshop
QUANTITY SURVEYOR
Bremner Partnership
LANDSCAPE ARCHITECT
Seed
LANDSCAPE EXECUTION
Hortus Collective
CONCRETE CONSTRUCTION
Mjs Construction
PROJECT ARCHITECTS
Eleanor Hedley, Akshara Pulpa
PHOTOGRAPHS
David Grandorge, Jim Stephenson
AREA
1665 M²
YEAR
2022
LOCATION
Cambridge, United Kingdom
CATEGORY
Dining Hall
Text description provided by architect.
Homerton College sits to the south of the city of Cambridge. Its core buildings were constructed in the 1870s for Cavendish College, with Homerton College moving to the site in 1894 from its original home on Homerton High Street in East London.
Founded in 1768 by a group of dissenting academics, it has retained its free-thinking roots.
Formerly a teacher training college, Homerton became a full College of the University of Cambridge in 2010, and now, as Cambridge’s largest College by student number, offers all the subjects taught by the University.
It has expanded to inhabit a greater proportion of its significant 10- hectare mature grounds, which encompass a large lawn and gardens, an orchard and sports pitches.
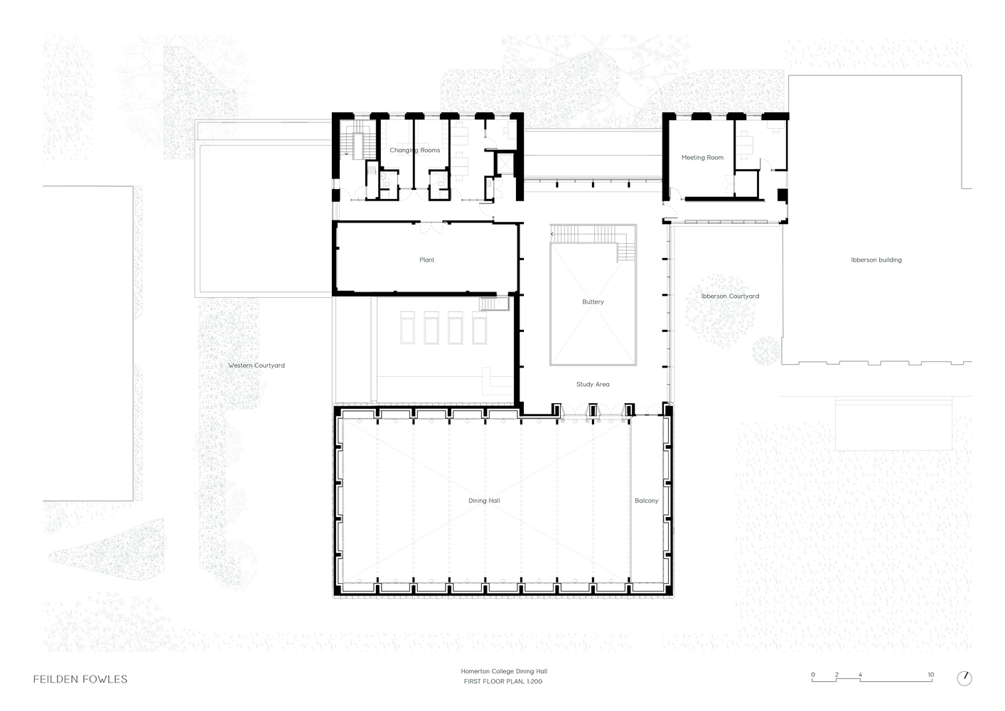
The new hall is located to the northwest of the estate, forming an important social cornerstone to the College campus, and completing the historic northern range of buildings. The dining hall has been conceived as an open and generous building in the round.
It addresses the challenge of relating to its four very different aspects: embracing the College grounds to the south and east, meeting the Grade II-listed Ibberson Building, addressing the street, and improving connections to graduate student residences and parking facilities to the west. By doing so, the building creates a range of informal social spaces around its perimeter – from the courtyards and cloisters, to generous thresholds with seating hewn into the façade – inviting chance encounters and moments of interaction for staff and students alike.
Homerton required new catering and dining facilities to accommodate growing numbers, which would also balance the functional and the celebratory demands of the brief.
The new building achieves both – a dining hall that’s bright, airy and efficient in the daytime, transforming into a dramatic evening setting reflecting the traditional ceremonial role of the hall.
While many historic dining halls are solid at ground level and often dark as a result, the new dining hall has an open and inviting base embracing its southern aspect, with views out towards mature trees and an area of ancient meadow.
The hall provides daily dining for students, staff and visitors, together with hosting formal and commemorative dinners throughout the year, with capacity for up to 336.
In addition, the new buttery seats up to 60, serving as a more informal café throughout the day, and affording students an alternative setting for socialising and quiet study space on the balcony.
Drawing on the Arts and Crafts tradition and the practice’s keen interest in low-tech forms of design, the new dining hall is announced by a distinctive undulating mantle of green faience, a traditional form of handcrafted glazed ceramic tile originating in Italy, but popular in the UK from the 1860s, and found on many Victorian public buildings.
Feilden Fowles worked closely with Darwen Terracotta, one of the UK’s few remaining architectural ceramics fabricators, to carefully test and develop the glazes. The final colours and textures were selected to complement the College’s existing material palette, consisting largely of red brick with sandstone details and moments of embellishment such as the lead and green oxidised copper flèche crowning the Great Hall.
The 3,200 tiles taper as they climb, to reveal high-level clerestory glazing that is illuminated from the interior at night, giving the building a glowing presence when viewed across the grounds. The relief of the faience echoes formal motifs of the Gothic Revival Great Hall (1889) and its elegant spire.
The building’s organisational diagram brings guests together from two principal entrances – the College entrance, which is on axis with the Great Hall and Griffin Bar, and a public entrance from Harrison Drive – into the buttery, the heart of the building and a communal gathering space that forms an anteroom to the primary space, the dining hall.
The hall’s main features, a sweet chestnut glulam timber frame and butterfly truss, echo traditional collegiate halls, albeit inverting the more typical pitched form into a valley-shaped roof. The frame was fabricated offsite and installed by a family team using traditional handcrafted carpentry joints fastened with oak dowels between the columns and beams.
It also embraces new methods of construction and engineering technologies of today, such as the use of parametric modelling to develop the faience façade – an Arts and Crafts of the 21st century.The architecture celebrates the integrity and inherent beauty of materials and craftsmanship, where ornamentation is a product of the natural beauty and imperfection of the handmade.
The building has been designed and detailed robustly for a minimum 100-year lifespan. Sustainability consultants at Max Fordham created a bespoke sustainability matrix, applying no fewer than 22 targets that exceed best practice.
The all-electric building is passively ventilated and uses a ground source heat pump that reduces CO2 emissions from heating and hot water by approximately 40%. The whole life embodied carbon surpasses the RIBA 2030 Climate Challenge (version 2) for non-domestic buildings. (See accompanying statement.)
The ground floor is defined by a pigmented in-situ concrete plinth, using 50% GGBS cement replacement, with columns set out on a 3m x 3m module which lends a quiet, rational order to the plan.
A pair of expressed timber framed volumes announce the building’s civic and collective areas – generous, open and uplifting spaces. The columns wrapping the base of the hall continue their rhythm internally to define other key public areas; the buttery, reception and servery.
Back of house spaces – the kitchens and staff facilities – are linked to the front of house with highly functional circulation and servicing connections.
The brick exteriors of the back of house buildings address Harrison Drive and are animated with Flemish brick bond and creasing tile details, again making reference to the nearby Ibberson Building.
By offsetting the volumes of the kitchen and hall, creating abundant daylight and views out, the new catering facilities offer high levels of staff welfare, supporting a welcoming and efficient catering operation.
In contrast to the College's previous dark and narrow servery, the new servery space is generous and n formed western courtyard.
Hand craftsmanship is highlighted in ‘Golden Apples of the Sun’, a site-specific artwork for the dining hall by Shezad Dawood.
The piece comprises three parts: a series of hand- sculpted brick headers on the Harrison Drive elevation marks the entrance; a seven-metre wide ceramic landscape based on the College's apple orchard has been created for the new reception area.
And a short film combines footage of the campus orchard through the seasons with images from the making of the artwork and from the North Devon source of the clay. Like the building, the work responds to Homerton College’s unique history and context.









































