
House Sierra Madre
ARCHITECTS
Lgz Taller De Arquitectura
MANUFACTURERS
Caesarstone, Cts Cement, Firenze, Los Patrones
LEAD ARCHITECT
Lena De La Torre, Oscar Fdo. Mendoza Lozano
VISUALIZATION
Mike Roha
ARCHITECTURAL DESIGN
Lena De La Torre, Oscar Fdo. Mendoza Lozano, Pablo Rodríguez
INTERIOR DESIGN
Jimena García, Myriam Cantú
CONSTRUCTION
Edgar Rocha
MYRIAM CANTÚ
Juan Erasmo Flores
SOIL MECHANICS
Adrián Minor
STRUCTURAL DESIGN
Jaime Montelongo
LANDSCAPE
Eliza Villanueva
YEAR
2022
LOCATION
Mexico
CATEGORY
Houses, Detail
Text description provided by architect.
House Privada Sierra Madre, a one-family house in the center of San Pedro Garza Garcia, in the Monterrey Metropolitan Area in Mexico, seeks to ingrate itself in the surrounding built context, as well as the actual social fabric.
Casco Urbano, the original center of this municipality, is a vibrant neighborhood, with an interesting mixture of housing and small commerce;
It is near Via Libre, a street complete with bike lanes and protected sidewalks and crossings for pedestrians; located half a block away from a public transport station, and just a couple of blocks away from parks and renovated public spaces.
From the outside, the house aims for the plastic integration of its facade with the neighboring houses and departments: the compositive lines of each of the three levels match those in the adjacent buildings.
The facade integrates louvers that allow the vision of the street from each level while protecting the interior of the house from solar incidence from the south.
Solar protection is complemented with thermal insulation in outer walls and slabs, as well as double glazing in facades and skylights, which seek to fill the house with natural light.
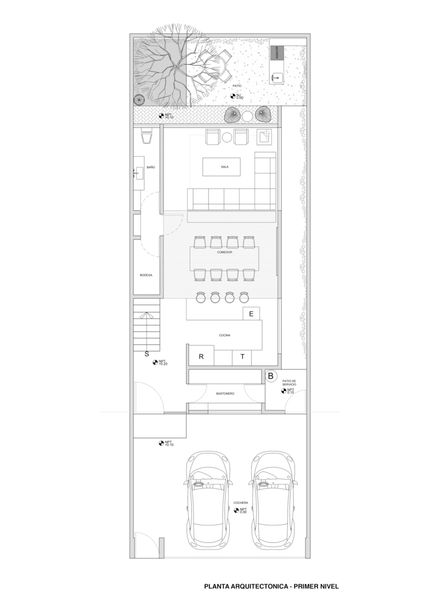
On the first level, in the access from the garage is located an entrance closet, useful in the context of the Covid pandemic, to leave contaminated shoes or coats before entering the house.
After the lobby, the social area opens up, with the kitchen, dining room, living room, a small outer terrace, and a garden. Below the stairs, a wooden wall hides a cupboard and a guest bathroom.
On the second level, there are three bedrooms, each of them with space for work, a walk-in closet, a full bathroom, as well as a storage and cleaning zone. On the third level, besides the service area and laundry room, there is a wide-open family room, with a terrace that opens up to the fantastic views of the local mountains: the Sierra Madre Oriental and La Huasteca.
Environmentally speaking, the project aims to capture natural sunlight while rejecting its thermic energy, not only with the filtration of solar light with the louvers in the facade but also with an energy-efficient film in each of the double-paned windows and skylights.
The construction system included also thermal insulation in the concrete slabs, a fundamental aspect relevant in the Mexican northeast context, to prevent energetic expense in the hot summer.
The gardens are full of native species with low hydric demand and low maintenance needs.
A simple water collection system was installed, to capture rainwater for cleaning and garden irrigation.





















