Princeton House
ARCHITECTS
LEVENBETTS
DESIGN TEAM
Rachel Johnson, Robert Silman Associates
CONTRACTOR
Allan Klein
PARTNER
Stella Betts
PROJECT ARCHITECT
Andrew Feuersteln
YEAR
2014
LOCATION
Princeton, United States
CATAGORY
Houses
Text description provided by architect.
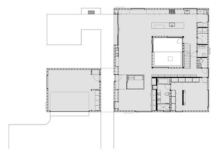
The Princeton House sits in a long thin 3-acre site, a former White Pine tree farm, 10 minutes from Princeton University.
The site is punctuated by the 100 foot tall trees in a grid that is consistent running north-south across the site and shifting in the east-west direction. The house is organized around a central garden courtyard.
The windows are located in relation to views out towards the landscape. In addition, these windows, along with the open courtyard, allow for cross ventilation to occur throughout the house. The exterior is clad in a vertically oriented corrugated metal siding.
The house was originally designed to lift and twist off the ground with a hole in the middle.
After a reduction in budget, the house was redesigned using the exact same organizational diagram, but now the house sits on the ground and the hovering hole in the middle of the house is an interior courtyard garden..





















