ARCHITECTS
Wangstudio
AREA
200 m²
YEAR
2013
LOCATION
Tt. Đô Lương, Vietnam
CATEGORY
Houses
Text description provided by architect.
The country house was designed for the retired partners. It is aimed to build a quiet space, consisting of a full-of-natural-light house and a small garden which the clients can spend their spare time to take care.
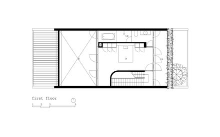
The most attractive space of the house consists of the living room, the dining room and the large void.
Combining with the chink system for natural lighting on the building roof, it helps to bring lots of natural light and fresh air during the day.
Moreover, the sloping concrete wall at the rear of the house is also very interesting as it provides an impressive look from the main space of the house, including the living room, the dining room, the kitchen and the bedrooms.
Also, the small garden is located at the house rear, which not only provides a green landscape for the building but also serves fresh vegetables for the family meals. Vegetables are planted in many reinforced concrete annular with various sizes, creating an interesting space and a flexible movement strategy.
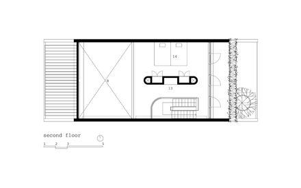
The main bedroom is the space where the clients have the best views of the building as they can target to the big void, the balcony with “a green fence” which can restrict the pollution of noise and dust as well as the summer solar radiation.
Another impression of the house is “the green fence” which contributes to the look of the building façade. Many Asia vegies are planted here, therefore, the designer created a steel frame for the clients to go up and down the “green fence” and to the roof.
The designer aimed to build a large space in which people can have the feelings of natural light in 3-D way, with shadow through the narrow chinks, and natural air ventilation through the big void.
Last but not least, the exposed concrete material brings many special feelings when it touches natural light and combines with natural wooden furniture. All create the warmest and friendliest environment for the house.





























