YEAR
2009
LOCATION
Nagoya-shi, Japan
CATEGORY
Houses
A SMALL HOUSE BUILT ON A NARROW SITE.
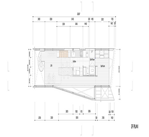
The width of the site is 5m, just the same as the street in front, and the house is even narrowed down into 3m width tubular space.
This tubular space separates into two branches, one protrudes straight in the air to create a void underneath for the parking, one slightly shifts down to form an entrance space.
This 22m long entrance space is not a closed corridor but almost like a open street, both sides are connected to the environments, even has a branch and a forked point, which leads you to the other side of the site, a little garden and a green road with a stream.
At the end of the entrance space, there is a spiral staircase to go up, and you turn around toward the living space upstairs.
The living functions are put along a linear flow line. From the living space to the bedroom through the kitchen and sanitary, all activities are organized as parallel spaces.
References from urban structure succeeded to pull out the charm of this site and give a unique organization to this house.















