
High Country House
ARCHITECTS
Luigi Rosselli
PROJECT TEAM
Luigi Rosselli, Edward Birch, Corrado Palleschi
STRUCTURAL CONSULTANT
Charles Blunt For Rooney & Bye Pty Ltd
PLUMBING & HYDRAULICS CONTRACTOR
Damien Mccann Plumbing
BUILDER
Jeff Rolley
ELECTRICAL CONTRACTOR
Troy Miller Electrical
INTERIOR DESIGNER
Darryl Gordon Design
YEAR
2013
LOCATION
Armidale, Australia
CATEGORY
Houses
Text description provided by architect.
This hill top house is an expression of the unique meeting of rural life and culture, situated close to a remote New South Wales country town, home to a university, a regional art gallery and many other cultural institutions.
The clients seamlessly combine their flourishing agribusiness with their white collar and cultural occupations. Gentlemen farming.
The materials outside are resistant to bushfires and the harsh winter climate, while maintaining a crisp and urban finish.
The Interiors are an urbane and cultured refuge to a collection of art and indigenous artefacts collected in Africa and Asia.
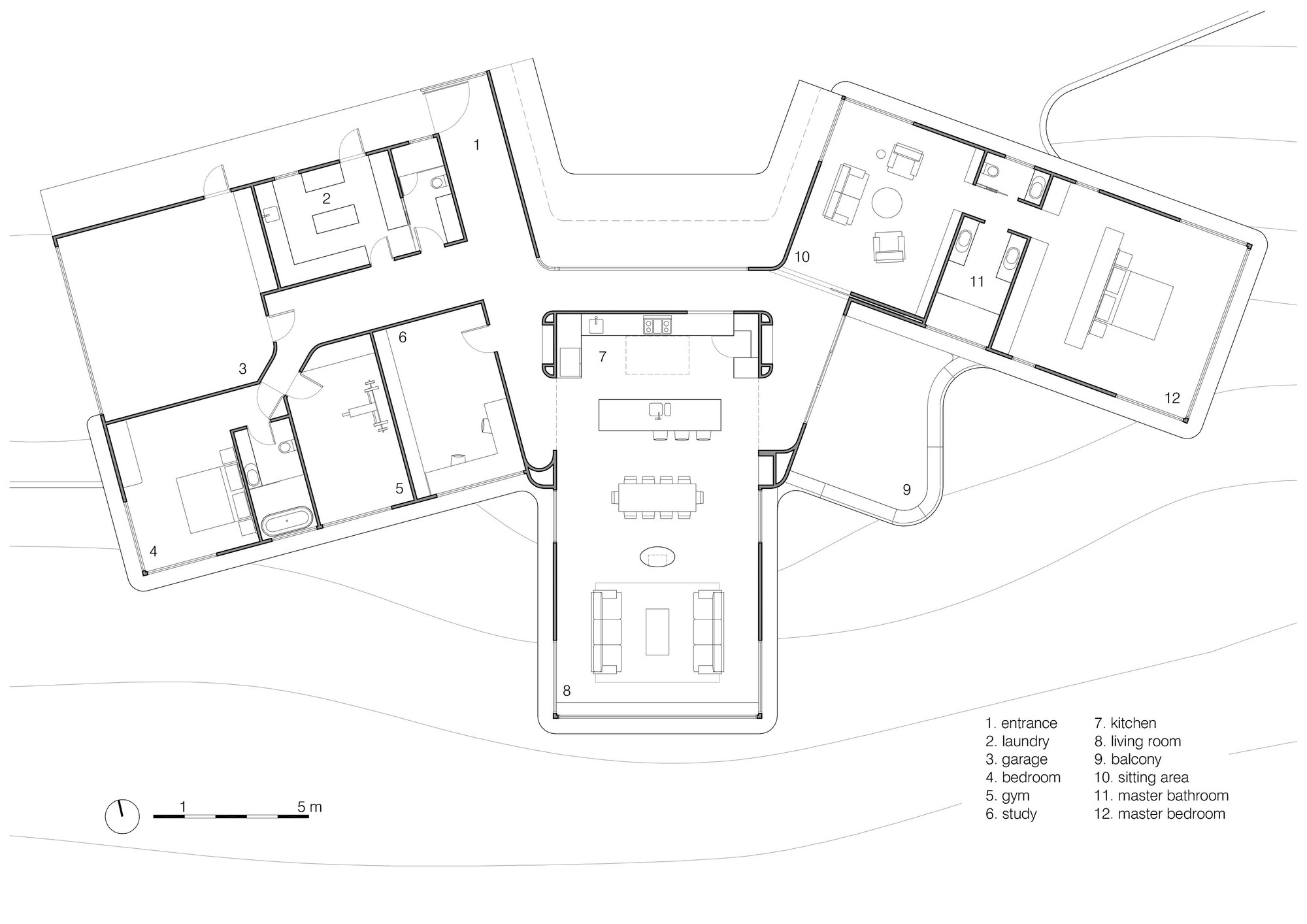
Their modern “Homestead” is located at the peak of the property overseeing the health of the cattle in the valley below through large windows and strategically oriented “wings”, each with a unique view of the meadows.
The 1000 meter of altitude are felt outside with cold winter fog covering the valley, whilst inside the house is a refuge enhanced by strongly integrated passive solar design principles.
The farm sheds and barns are located remotely, creating a separation of work and family life for the owners.
Keeping nature intact, the grassy slopes of the hill continue all the way up under the concrete platform.
The slab and the corrugated steel skirt under, are a protection against grass fires and conceal large water tanks.
The concrete and the tanks provide ample thermal mass to balance the temperature extremes that high country encounters.



















