ARCHITECTS
Atv Arquitectos
ARCHITECT IN CHARGE
Federico Azubel, Ignacio Trabucchi, Walter Viggiano
INTERIOR ARCHITECTURE
Vanesa Lidjens
ARCHITECT CONSTRUCTION DIRECTOR
Diego Bazzigalupi
PROJECT TEAM
Ma. Pia Giraudo, Damián Parodi
MANAGERS
Pablo Macchi, Ma. Pia Giraudo
MANUFACTURERS
Gustavo Caballero, Invertop, Stilo Cerramientos, Tameba
YEAR
2014
LOCATION
Buenos Aires, Argentina
CATEGORY
Apartments
Text description provided by architect.
Located in Palermo, a neighborhood in the city of Buenos Aires, the Project looks into the diverse ways of inhabiting a house, thus rethinking and experimenting the uses of a house according to the diverse matters intrinsic in this discipline.
One of the most significant uses is the structure, meaning the architectonic structure, which defines spaces and their relations.
Each participating element expresses itself and shows a tectonic relation to each part as well as to the whole of the works.
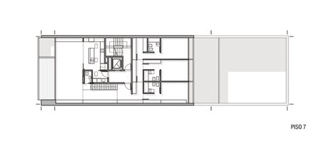
Functionally, the building presents two room apartments on the first six levels.
These apartments are developed according to the proposed theme, evidencing such structural elements.
Each repeating beam which goes along the building facade is related to a corbel which structures part of an element/dividing furniture thus setting the different uses in the units.
The extra item in the project is a four room apartment with expansions and its own swimming pool on the top level, relating the different levels with open spaces and natural light which generate a unique atmosphere.
Multi-functional furniture goes along the unit connecting the public and private sectors.


























