
Bosque do Horto Condominium
ARCHITECTS
Reinach Mendonça Arquitetos Associados
AREA
1233 m²
MANUFACTURERS
thyssenkrupp, Cavicon, MAV do Brasil, Maditu, Pi Mármores, Qually Gesso, Risatec, Ulimax
YEAR
2016
LOCATION
Jundiaí, Brazil
CATEGORY
Hospitality Architecture
Text description provided by architect.
The project is situated on a site with a natural slope, an admirable view facing north and a beautiful lake.
The main idea was to minimally change the original site, but at the same time provide some sights of the extremally beautiful landscape of the forest.
Therefore, a social club headquarters was designed to this place, embracing all organization and brief premise that a sports and leisure area requires.
The landscape was the determining factor that led the design to be always seeking for integration with nature and offering free activities and enjoyable circulation and living areas.
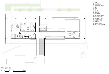
An access through an elevated walkway contrasts the building from the site, leading the pedestrian to this double storey height space where a view to the landscape can be contemplated.
All individual activities, as a gym and a game room are located on the upper floor, as well as the ground floor hosts all free and common activities.
This club headquarters arises from a slight steel structure, that has it ends as two curtain panels.
The architectural concept was one single shelter, turned to a beautiful view that would host many activities that happens in this large and open space.

























































