
Festival Hall Neckarallee in Neckartailfingen
ARCHITECTS
A+r Architekten
MANUFACTURERS
Equitone
LOCATION
Neckartailfingen, Germany
CATEGORY
Cultural Architecture
Text description provided by architect.
For the new Festival Hall in Neckartailfingen a public space has been developed according to its impotency for the community.
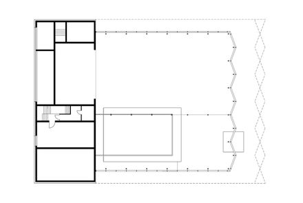
The allée next to the river as a defining element of the landscape finds its spatial conclusion in the new festival hall.
the solid part with back of house areas, including the multi-purpose hall and the transparent part with cultural hall and visitor facilities.
The new Festival Hall opens up equally towards the festival square, the river ‘Neckar’ and the ‘Neckarallee’. The roof structure is the defining element of the Festival Hall.
The diamond-shaped girder grid was developed analogical to the image of overlapping branches of the ‘Neckarallee’.



















