ARCHITECTS
Esquadra Arquitetos
STRUCTURAL CALCULATION
André Torres
MANUFACTURERS
Arquivo Contemporâneo, COR Conceito, Kitchen, Lumini
LANDSCAPING PROJECT
Paula Farage
INSTALLATIONS PROJECT
Centra Engenharia
CONSTRUCTION
Memória Engenharia
PROJECT TEAM
Manuela Dantas, Silvana Moraes, Caroline Albergaria, Marcelo Braga, Marianna Resende
AUTHORS
Filipe Monte Serrat, Laura Camargo
WORK SUPERVISION
Esquadra - Filipe Monte Serrat e Caroline Albergaria
AREA
587 m²
YEAR
2018
LOCATION
Brasilia, Brazil
CATEGORY
Houses
Text description provided by the architects.
The client’s first intention was to sell the house, a place where she was born and raised, built by her parents. The main idea was to build a new, small and very contemporary new house on another site.
However, the old house and site had a priceless value for the owners, and so the decision was to make a full renovation, and the challenge to utilize most of the structural elements from the original construction.
Aiming the viability of the renovation, around 100m² of the original construction was suppressed.
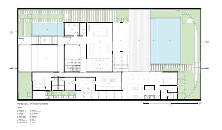
Removing the office and the porch, as well as two slabs on the first floor, created generous internal empty spaces that allowed the fluidity of the space and the presence of natural lighting.
By removing the tiling from the ceiling, the redesign of the upper floor was intent to privilege the interior and exterior visuals.
The big white volume opens up for both the street and for the outdoor of the site.
On the lower floor, with more solid materiality, the incorporation of metallic pergolas to the original concrete structure creates better protection to the main entrance and the porch.
The new metallic structure prolongs itself along the roof, from the porch to the double-height living area, setting up a transparent mezzanine that also comprehends the library on the upper floor, connected to access of the bedrooms.





















