Goodtown House
ARCHITECTS
Alexandra Buchanan Architecture
LEAD ARCHITECTS
Alexandra Buchanan, Jacob Jooste
CONSTRUCTION TEAM
Inform Building
MANUFACTURERS
Autodesk, Enscape, Astro Lighting, Reece, Subzero/wolf
YEAR
2019
LOCATION
Rochedale South, Australia
CATEGORY
House
Text description provided by architects.
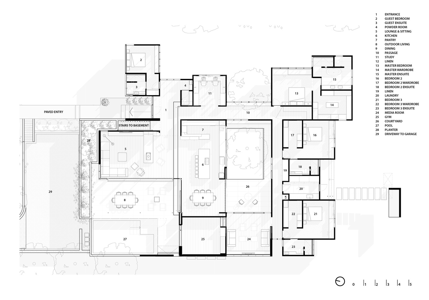
The Goodtown house is a beautifully crafted, texturally rich contemporary courtyard home in the sought-after suburb of Rochedale, 17km southeast of Brisbane.
The large 1900m2 plot situated on the corner of Goodtown street and Grieve road with large imposing neighbouring homes presented a challenging design brief to the architects.
The introduction of a courtyard between the bedrooms and the living spaces was vital to allow the internal spaces to orientate inwards and find visual relief in the green spaces and view corridors framed by the building.
The strip of garden between the building and Grieve Road was an important design consideration in allowing visual privacy and acoustic buffering from the roadway.
This sprawling single storey home sits gently on the site where subtle level changes navigate the landscape and the orientation.
Goodtown House presents large oversailing roof eaves to the north to create the essential shading over the clerestory windows below.
The clerestory windows above the doors will encourage natural airflow and the ingress of soft light throughout the living areas.
The material palette is warm and diverse including charred timber, warm oak floors, steel, concrete and stone presented in a rich architectural composition.
An interplay of levels, interconnected internal living spaces and the relationship to the exterior, create a multi-faceted yet private living experience.










































