PROJECT MANAGER
Simon Teyssou, Franck Bassin
PHOTOGRAPHS
Nicolas Lamouroux, Benoit Alazard, Christophe Camus, Simon Teyssou
COLLABORATORS
Bet 3b, Seterso, Aes
AREA
654 M²
YEAR
2014
LOCATION
Le Rouget, France
CATAGORY
Mixed Use Architecture, Housing, Offices
Text description provided by architect.
Placing a building in the centre of a small town asserts our desire to heighten urban density and to take part in livening it up and improving its appeal, instead of choosing a plot on the outskirts.
The project itself is an alternative to spreading urbanization. The building fits into a hollow between two existing buildings.
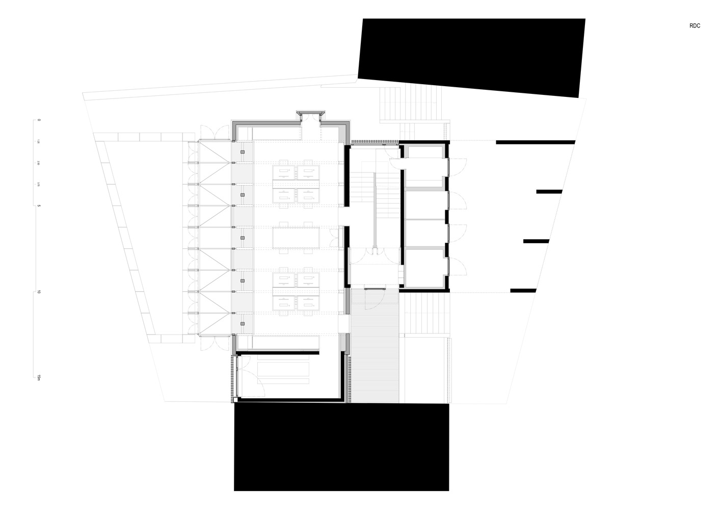
It is composed of a mixed program of offices (for architecture) and private flats (one 6-room and two 3-room flats).
The L-shaped construction surrounds an open courtyard on the back street and vertical circulation gives access to its half-levels.
A public pedestrian path was made along the west side of the property, connecting the residential north street to the many services and shops on the avenue du 15 septembre.
The main volume comprises an architecture firm at garden-level and ground-level, and a 6-room family flat on the first and second floors. This volume opens widely to the south.
Aligned with the street, the north volume includes a technical room in the basement with collective wood-pellet boiler-room, storerooms for the flats and three open garages on ground-level.
Two 3-room flats for rent are located on the first and second floors. An underground tank collects rain-water for bathrooms and gardens.










































