Noe Valley House
ARCHITECTS
Designpad architecture
INTERIOR DESIGN
Melissa Winn
MANUFACTURERS
Neolith, AlumaTherm, Fireclay, Element 4, Shou Sugi Ban
CONSTRUCTION
Brad Doran
INTERIOR DESIGN
Melissa Winn
PROFESSIONAL ENGINEERS
Enertia Design
YEAR
2016
LOCATION
San Francisco, United States
CATEGORY
Houses
Text description provided by architect.
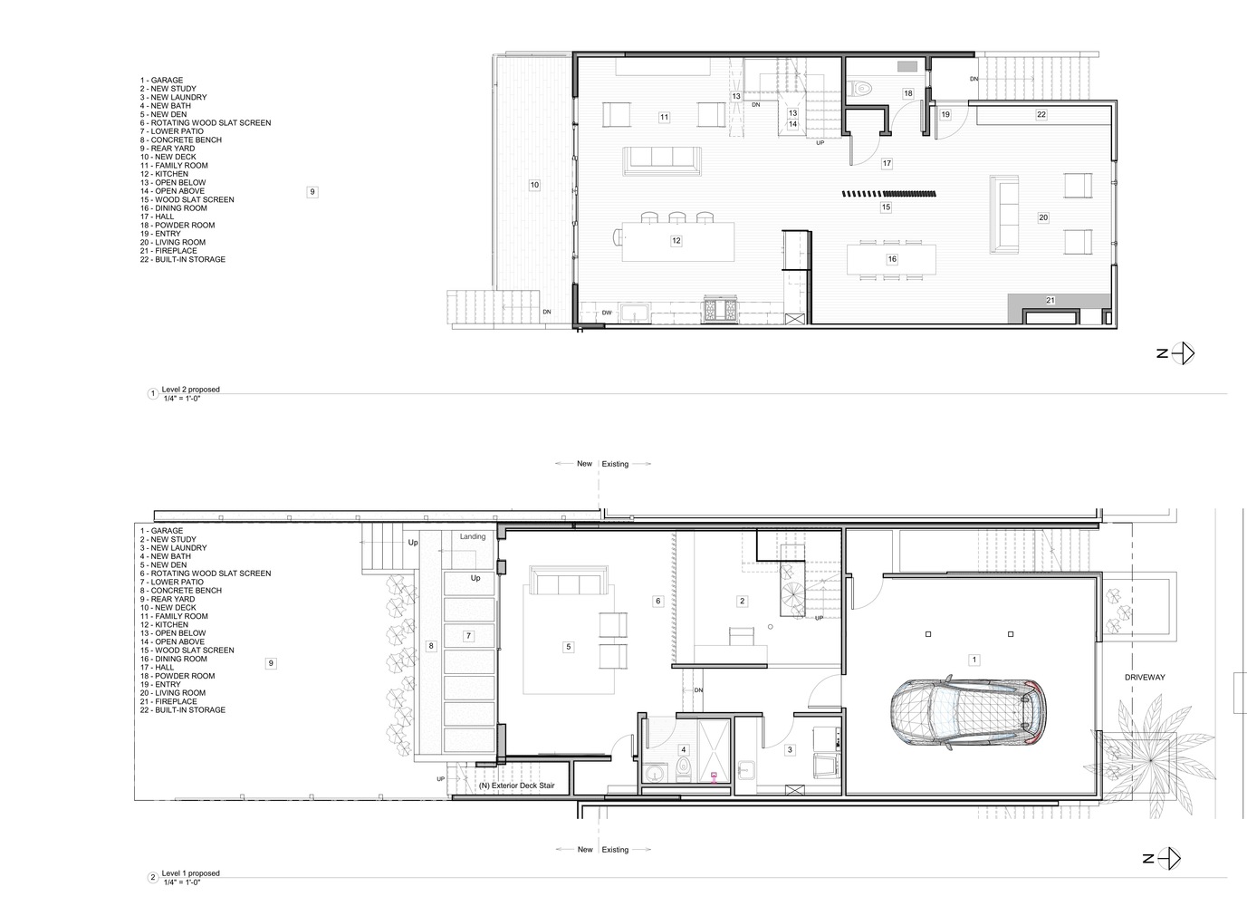
The original home was a modest one story over garage, two bedroom, one bath home in the Noe Valley neighborhood of San Francisco.
Similar to other homes in San Francisco, when built, a handful of other very similar homes were constructed adjacent to it, each slightly different than the next.
Our clients are a young family who at the start of the project had one toddler and towards the end another.
Their dream for the home was to modernize and expand the space to allow for a growing family.
Connecting to the rear yard and expanding vertically to capture the downtown views were vital as were an open floor that was flooded with light.
At the ground floor the rear was dug out and expanded to allow for a living space and home office.
At the main floor the space was gutted and expanded out with a new rear yard roof deck and an open floor plan.
And at the new third story, a master suite and roof deck with city views was designed along with two bedrooms and a new bath.
























