Bruz Utopia Housing
STRUCTURAL ENGINEERING CONSULTANTS
Ouest Structures
CONSTRUCTION ECONOMIST
Cabinet Lemonnier
PROJECT MANAGERS
Champenois Architectes
ACOUSTICS CONSULTANTS
Acoustique Yves Hernot
PRINCIPAL USE
87 Rent-to-own Flats And A Sheltered Garden
FLUIDS CONSULTANTS
Icofluides
PHOTOGRAPHS
Philippe Piron
AREA
7149 m²
YEAR
2021
LOCATION
Bruz, France
CATEGORY 
Apartments
Text description provided by architect. 
The UTOPIA residence is a new address in the town of Bruz, located on the edge of the Herverie park, a stone's throw from the town center. 
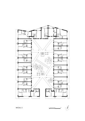
It is a quiet building set on the slope of the land, a large vessel whose bow, open to the public garden, invites the residents to enter an interior world sheltered by a glass roof.
Here, you can walk on gangways suspended from the treetops, talk to your neighbors about the tomatoes ripening in the communal garden on the roof, and watch the Bruz landscape while sheltered from the weather.
Here, natural light is everywhere, even in the car park, and vegetation is present on every floor, even on the roof.
In the flats, residents always benefit from a double exposure providing sunshine and nice views, and a large balcony protected by white glazing.
On the roof, you can enjoy winter and summer gardens, which light up at night like lanterns to liven up the town's skyline.



























