Sebastian Patiño House
ARCHITECTS
Adolfo Mondejar Estudio De Arquitectos
ADVISORS
Jose Luis Gomez, Ivan Salgado Estructuras
COLLABORATORS
Adriana Barberis, Florencia Torresi, Francisco Figueroa Astrain, Juan Manuel Balsa
PHOTOGRAPHS
Gonzalo Viramonte
YEAR
2013
LOCATION
Córdoba, Argentina
CATEGORY
Houses
Text description provided by architect.
ICON
The house is the second commission by the client after 9 years, suggesting a second chance and new thinking of the profession. The house will be inhabited by Sebastian and his three daughters.
To think today of the necessary, in which people develop their life, where nothing is in excess in relation to spaces, needs, and ways to build. To avoid excesses is an essential part of this project.
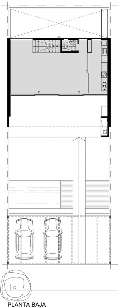
The neighborhood is new, with a cluttered landscape and many works to be done. The site, due to its size, allows us to compose a habitable interior, in relation to the proposed courtyard.
The courtyard will one day be covered by vines on the walls. The project proposes an interior courtyard, and shares with the neighborhood a square or pergola shading outwards. A place to stay, park, play, chat, outside the space of the house.
The construction involves a group of master masons, not only in the construction of exposed slabs, masonry, stucco floors and bathrooms, but also in the construction and preparation of openings and wooden facades, in the execution of the study and dining tables outside, avoiding precise details and recovering the wood used in concrete slabs.
The slabs on the upper floors are made of exposed joists. The proposal raises a roof for the public area and living room between two voids with different character, where the living room and the transition from the exterior are unified into a whole.
Matters of change of use are raised in this small house that tries to be sustainable in the basics, its idea, its construction, its expression and its program, generally avoiding the superfluous.
















