ARCHITECTS
Nmic Arquitectura
ENGINEER
Esteban Rodríguez
CONSTRUCTION
Nmic Arquitectura
YEAR
2014
LOCATION
Buenos Aires, Argentina
CATEGORY
Houses
Text description provided by architect.
Two independant homes, similar but different, situated in a tipical 8,66m wide lot with a depth of 28m and bought by two brothers to build their private residences.
The urban environment is irregular in its shape and height, combining residential and textile workshops. The proyect was conceived as two equivalent houses in footage and cost.
The main difficulty was to generate similar spaces for completely different situations that each presents, one builds the front of the construction towards the street and the other faces the back of the lot; and to create snug exterior spaces that preserve the intimacy of each house towards the other and their context.
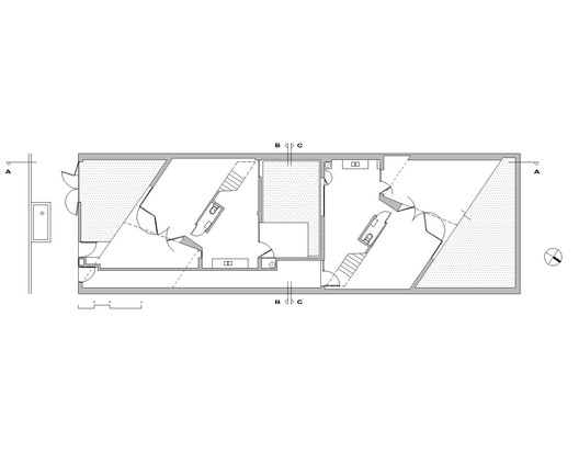
The plan takes it's shape from the diagonal between the sidewalls, generating an increase of the facade area and devious visuals , both between the houses and with the context.
The plan design is repeated in both houses identically and rotated 180 degrees but the way you enter each one generates differences in layout and circulation.
The staircase runs through the diagonal, dividing the kitchen space and living room both equivalent in size. The first floor follows the staircase direction and the facade, in it's diagonal.
This allows generous bedrooms (both irregular in shape) and bathroom. The street facade reads as a single shape, while the first floor moves diagonally to make room for semicovered spaces, a triangular shaped garden and a terrace on the first floor.
This was a traditional and inexpensive construction consisting of in situ concrete columns and beams, joists mezzanine floors, airbrick masonry and plaster finishings, anodized aluminium frames and microcemento floors.






















