YEAR
2013
LOCATION
Saveh, Ukraine
CATEGORY
Houses
Text description provided by architect.
Located near Saveh, 70 km from Tehran-the capital city of Iran-, shams Villa sits on a 6015 square meter land in a village.
The client is a journalist who requested a recreational house close to the family farm. The intention was to design a modern building reflecting the Iranian identity.
Pursuing the client needs and desires and considering warm and dry climate of the site, Koushk, a Persian traditional summer house, was redefined. Koushk, like pavilion, is a kind of extroverted architecture which is commonly located in a garden with semi- open balconies.
As a first step, the four natural elements (fire, earth, water, wind), the most dominant characteristics, symbols and attributes of Persian culture and architecture, were considered as our initial concept. Among these elements, water has been considered a natural element that is pure, clean and purgative.
So irrigating water on site was used as an architectural element and designed as a ringed pool surrounding the building footprint. In addition to the environmental aspects of the water, it will reflect the building image as well as the day-light in-to the house.
Following the Koushk design principals, four walls (symbolizing the four natural elements) were used in every corner of a pure cubical structure to form the main enclosure to encompass all the closed and semi-open spaces.
The inner spaces set back from the outer envelope for protection from direct exposure to sun. Furthermore, the facades of the inner spaces were distinguished from the main shelter to emphasize the contrast between solid and void spaces.
The natural vistas, on the other hand, led to the creation of an L shape terrace on the second floor, expanding from south side to north, reaching the shell to form a continuous surface.
The east elevation and the way the entrance of the house is encountered were great important features of our design.
The principals of entrance in Iranian traditional buildings were reworded using the two symmetrical walls and columns on each side, while two other elements, curtain and bridge, challenged the symmetry. The upper terrace receded back from the main façade to layer it up.
To protect from cold winds and to reduce glare and overheating, the west side has low height windows functioning also as paths through which natural light- reflected from the smooth water-can enter the house.
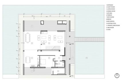
The house consists of two stories. The first floor is a social area, including a kitchen, a living room, a guest room with bathroom and a service area, accessed through the rear terrace.
At the upper level are the bedrooms with a bathroom and the private living room. The internal void expands to external balconies to provide the spatial different inner views for both interior and exterior.
Due to the remote location of the project and considering the limitation in transportation and access to professional executive teams, the local materials and simple details were used.
Finally, instead of imitating the traditional forms, simple lines and finishings were implemented in the concept of the building to create a sense of contemporary Iranian architecture.























