
House H : a' House
ARCHITECTS
Hirvilammi Architects
MANUFACTURERS
Pilkington, Antares Enterprises, Profin, Pilginton
LOCATION
Seinäjoki, Finland
CATEGORY
Houses
Text description provided by architect.
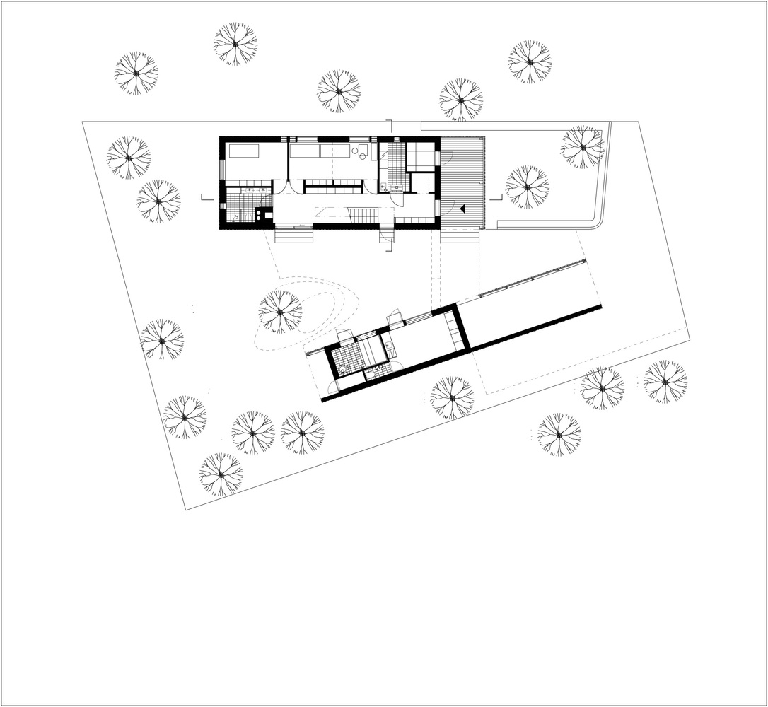
House H / a' House was built for the architect’s own family.
The wooden building is situated in the traditional residential area of Kivistönmäki, close to the children’s schools and grandparents as well as the railway station.
The narrowness of the plot and its wedged shape influenced the form of the house and its building location. The open views and orientation determined the fenestration and the passive sun screening.
The materials were chosen to appreciate and accommodate the surroundings and satisfy our personal preferences.
The house consists of the main building and an annexe. During the design process the views outwards and how to create a memorable dwelling experience within an ordinary urban structure were carefully studied.
Somewhat against convention, the bedrooms and utility room were placed on the ground floor and the living room on the upper floor because of the views that opened up from there into the surroundings.
The annexe comprises a workroom and guest room as well as a wood-heated sauna. A sheltered area for a garden is created between the buildings.
The high standard of the workmanship, which came about in cooperation with local material suppliers and builders, provided the finishing touches to the totality.
The architect has been able to learn from the craftsmen and other building professionals. Additionally, this has been a way of passing on tacit knowledge.



































