Triada Houses
ARCHITECTS
Lucía Villers
MANUFACTURERS
Autodesk
LEAD ARCHITECTS
Lucía Villers, Abelardo Villers
COLLABORATORS
Martha Gómez, Sergio Barrios, Gerardo Fonseca, Sofía Villers, Guillermo Jasso
AREA
256 m²
YEAR
2018
LOCATION
Guanajuato, Mexico
CATEGORY
Houses
Text description provided by architect.
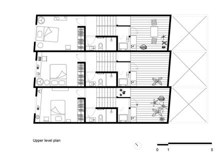
Triada is a project of three small houses in the mountainous city of Guanajuato in Mexico. In a land with 10 meters wide and 16 meters deep and a 30% slope, the houses are staggered following the slope of the mountain, which allows differentiation between each other.
The stair is used as the centerpiece between the different spaces that overlap each other. Despite being a reduced house in squares meters, the unevenness isolates each space of the house, providing more privacy and avoiding corridors.
A house with these dimensions is a very new typology in the city, nevertheless, the studio tried to integrate the project using the construction knowledge about the local area and regional materials.
As a result, these houses have exteriors made of simple coloured plasters and greenstone as every building in the city, the interiors are plain walls, wooden floors, and windows and doors made by a local blacksmith workshop.
The different levels of the house include living spaces to eat, sleep, wash, rest, terraces, and storage.
Each space is an opportunity for life to unfold in different ways, the terrace is a chance for a dog to fetch the ball or a resting place, the garage becomes a carpentry workshop or a storage space, the study is the main living room of the house or can be converted into a second room if necessary.















