Fulham Pavilion
YEAR
2016
LOCATION
London, United Kingdom
CATEGORY
Houses, Small Scale, Extension
Text description provided by architect.
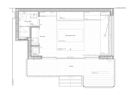
Silver & Co has designed and converted a derelict shed into a flexible multi-functional art studio for an artist couple and their child at the bottom of a west London garden.
The studio has been designed to meet the sculptor and painter’s needs that include work, hobby, play and storage.
It also needs to be turned into a gallery or guest room when needed.
With these in mind, the studio has to be as flexible, open and airy as possible.
Under the timber flooring hides a sunken bed that is accessible by lifting a section of the floor mechanically.
The birch plywood wall panels on both sides of the kitchenette slide open to reveal an artist’s wash-up sink and a shower room.
Hidden within a full height storage cupboard stands a folded table-tennis table, where another of the clients’ passion has been included.
Folding desk has been incorporated to allow for a bigger space when it is not being used.
The light-filled space with opening skylights, windows and glazed sliding doors leads onto a heated veranda where the family gets to appreciate their garden and enjoy outdoor dining whenever possible.
The location of the studio benefits from direct sunlight and timber louvered canopy and automatic roller mesh blind have been introduced to ensure that the studio and veranda get ample shading and not overheated on sunny days.
Anthracite zinc and Accoya wood cladding, concealing an insulated steel and timber structure, have been chosen for their durability and stability and they compliment with the existing brick back wall.



































