Van De Velde Funeral Center
MANUFACTURERS
Autodesk, Delta Light, Liquid Floors, Adobe, Kanvas, Qubus, Trimble
LOCATION
Zomergem, Belgium
YEAR
2018
CATEGORY
Restaurant, Burial, Apartments
Text description provided by architect.
How should we begin with the design of a funeral center that contains a restaurant and a private apartment? First, the analysis of the different uses that are required. What can be linked and what prefers a private or isolated character.
The morgue requires a subdued, serene atmosphere. It implies saying goodbye to the deceased privately. In contrast, the zone is intended for a farewell meal rather than a meeting place for the family.
Notwithstanding restrained, it brings people together. Often to catch up and give one last tribute to the deceased. In any case, we are given an opener here with regard to the personal greeting to the dead.
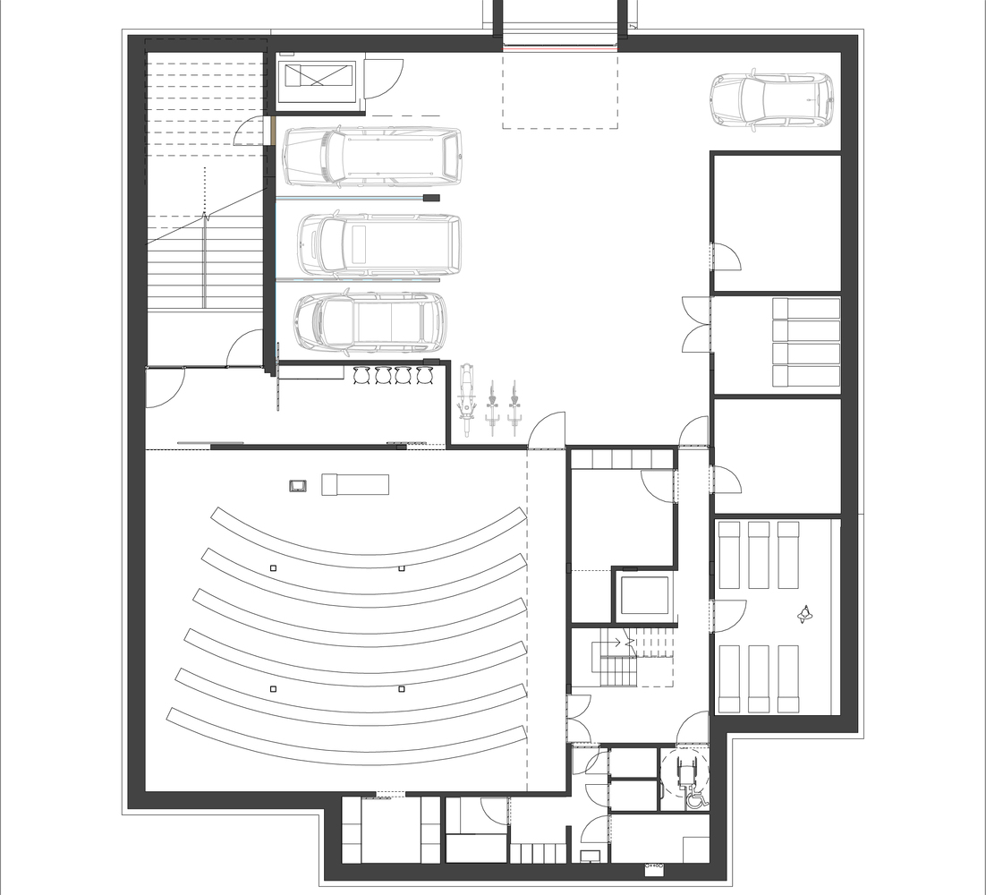
The best solution, in our opinion, for this conflict of privacy is to split the building into the mortuary and the restaurant.
The division takes place by creating a continuous (possibly lockable) hall in which toilets, cloakroom, and decorative ornament sales are housed. The meeting of the mortuary, restoration, and living is a central point where we provide the reception desk.
Making two entrances gives us the advantage of keeping the building flexible and providing one entrance for mortuary / private entrance and the other (more towards the parking area) for the restaurant.
The building volume is determined by mutually shifting boxes, creating spatial tensions, openness, and security, a game of light and shadows.
The experience of the last greeting is enhanced by this, we gradually move from a higher, more open volume to the lower, more secure greeting room.
Our volume game creates a very subtle light just before the greeting of the deceased.
The parlors also benefit from such game of light, for example, natural light is drawn into the reception area via an upper window and the large room receives filtered light from wood.





























