Creative Campus
MANUFACTURERS
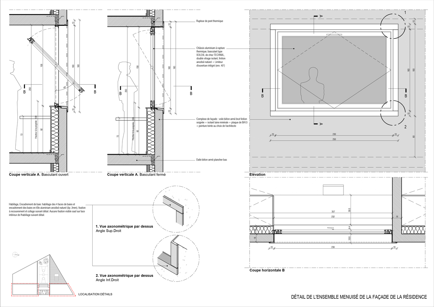
Autodesk, Technal, Aluform
LEAD ARCHITECTS
PhIlIpPe dUbUs
PHOTOGRAPHS
Maxime Delvaux, Julien Hourcade
AREA
7484 M²
YEAR
2019
LOCATION
Rennes, France
CATEGORY
Other Facilities, Dorms
Text description provided by architect.
Fluctuating between the exceptional nature of the program and the urbanity of its outline, the agency has designed the 5th campus of the ICONES Group.
The project contains a game-design school and a student’s residence of 219 units at the junction of the park. The “Rambla” and La Vilaine, which showcase the new landscape of the Baud-Chardonnet district of Rennes.
The school occupies three floors, And the two residential volumes 7 and 13 floors respectively which are joined at right angles on a trapezoidal plot.
They are stacked so as to take advantage of the views and feature stepped terraces according to the desires of the urban planner.
The first building for students is attached to the cafeteria and the plastic-arts rooms, while the entirely greenery-roofed second caps the parking facility, and the third contains a sports field on the school’s roof.
This high-rise campus follows a rigorous pattern and is encased in raw concrete with a sober signature that melts into a remarkable urban landscape and adheres to the restricted budget without sacrificing any of its quality.
Or is it to hideaway? Because between transparency and display, it is the views and the light that dictate the project.
The residence’s facades are pierced by very wide, tilting picture windows, while the walls of the school are interspersed with glass bands.
On the ground floor the spacious, glassed-in reception area exposes the life and works of the students to the neighborhood, allowing the surroundings to penetrate to the heart of the project, right up to the doors of the projection room and the film studio, thus hiding from hasty glances what constitutes the essence of an unusual program.



















