ARCHITECTS
Pdp London Architects (Hong Kong Studio)
EXECUTIVE ARCHITECT
Lwk & Partners (Hk) Limited
CLIENT
Swire Properties
MANUFACTURERS
Breinco, Skk, Seed
LANDSCAPE DESIGN
Urbis
ARCHITECT IN CHARGE
David Hoggard, Adrian Wu, Alastair Mehl, Halie Zhan, Alexandra Byrne
YEAR
2015
LOCATION
Hong Kong (Sar)
CATEGORY
Houses, Housing
Text description provided by architect.
Whitesands is a residential development of 28 detached house nestled between the beaches of Pui O and Cheung Sha on South Lantau, Hong Kong.
The development draws on the beauty of its natural setting, with each house orientated to capture panoramic views of the South China Sea and the surrounding landscape.
The brief called for a contemporary development that promotes a relaxed, beach-side lifestyle. An open, community living concept was introduced early in the design process; echoing this lifestyle and influencing how we approached the design of the houses.
The community concept built a picture of the development from the earliest stage; one where the spaces between buildings are as important as the spaces within and as a collective, the houses form an idyllic enclave. The clubhouse, a simple pavilion, would be a discreet but intrinsic part of the community.
The design approach for Whitesands draws on openness and a connection to the outdoors, not only in the physical design of the buildings but also in its social ambitions for this new community.
Strong connections to the landscape are key manifestations of this approach. Every opportunity was sought to blur the boundary between indoors and outdoors, creating opportunities for residents to engage with nature and with each other.
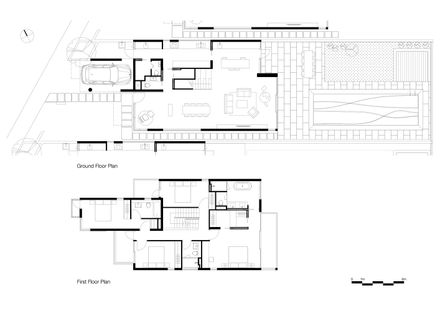
Full height glazing, uninterrupted, frameless corner windows and large, sliding doors open the houses both visually and spatially. Floor-level strip windows provide pleasing glimpses of the landscape along the boundary walls.
Limestone floors run throughout the open-plan ground floor and into the garden beyond further encouraging indoor/outdoor living.
The brief also called for sensitivity to the natural landscape, working where possible with the natural grade and rock formations and preserving the native incense trees on site.
This resulted in the crafting of numerous house plans, including an innovative “upside down” house; each house designed to respond to its particular, natural context.
Over 10% of the materials come from recycled sources and the overall development achieves a very high level of finish despite minimal use of quarried stone. For its conscientious environmental initiatives Whitesands was awarded a BEAM+ Platinum rating.
















