The Second Headquarters of DAEGU BANK
ARCHITECTS
Junglim Architecture
LEAD ARCHITECT
Lim Jinwoo
MANUFACTURERS
Fasign Terracotta, HANGLAS, Ingemar, RP-Technik
PHOTOGRAPHS
Yoon Junhwan
AREA
37055 m²
YEAR
2016
LOCATION
Buk-gu, South Korea
CATEGORY
Bank
Text description provided by architect.
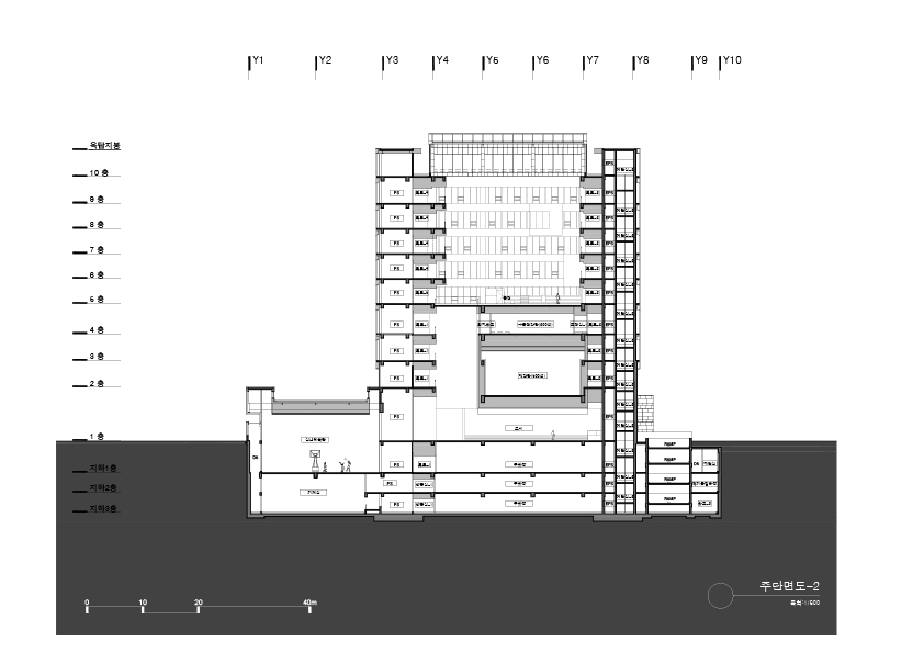
Daegu Bank Project is to design the bank’s second head office building in a 9,638m2 lot.
Located in the city center, the site used to be the home of Daehan Textile and Cheil Industries and has gone through an extensive renewal in accordance with the district zoning plan.
The bank’s financial tower epitomized the capital accumulation and advanced technologies when it was built in the 1970s and 1980s, while the main head office which was designed by Junglim Architecture in 1978 is considered a pioneering project together with Industrial Bank of Korea’s main head office that established the foundation of the country’s modern bank architecture.
The project was designed by an unusual team that is composed of the original architect of Daegu Bank’s first head office and junior designers some 50 years younger than the lead architect in an attempt to rewrite the history of bank architecture.
The building will rise as the Bank’s new headquarters that represents the local community and promotes shared growth with it, thereby suggesting a new paradigm in the design of financial buildings.

























