Seven Meadows Farm
ARCHITECTS
SPS Architects: Sanders Pepper Smith
PHOTOGRAPHS
Paul Woy
YEAR
2009
LOCATION
United Kingdom
CATEGORY
Houses, Adaptive Reuse
Text description provided by architect.
DESIGN & ACCESS STATEMENT
The Seven Meadows site comprises of a barn conversion with out buildings on 0.39 hectares or 0.97 acres of land. The Site is located to the west of Stithians Reservoir and lies approximately 2 kilometres north of the village of Carnkie, 2.9 kilometres north of Porkellis and about 3.5 kilometres west of the village of Stithians.
Community facilities and services are available in all these villages. The main urban area of Camborne-Pool-Redruth is located some 6 kilometres to the north.
The area is served by rural highways and the access to the site is via a track off the Polmarth to Penhalveor Road, which connects Penmarth to Stithians.
The land comprising the application falls within the Carnmenellis Area of Great Landscape Value. A ‘Cornwall Landscape Assessment’ was published by the County council in 1994. In this document the Carnmenellis Landscape Character Area is described as:
“Gently undulating, exposed, elevated granite plateau. Boggy. Small streams dissect landscape forming shallow depressions, becoming more incised at the edge of the granite. Open, bleak landscape with few hedgerow trees and limited woodland in valleys. Stone walls enclose small to medium scale fields of Anciently
Enclosed Land which creates a distinctive pattern. Settlement pattern is mainly dispersed villages of medieval origin. Land use; Permanent pasture, rough grazing, some horticulture on south facing slopes. Pylons, masts and poles evident, with remains of past mining industry.”
The barn conversion on the site is set out in traditional form providing a typical example of a small, traditional farmstead sited in the wider sweeping, landscape, as indicated above.
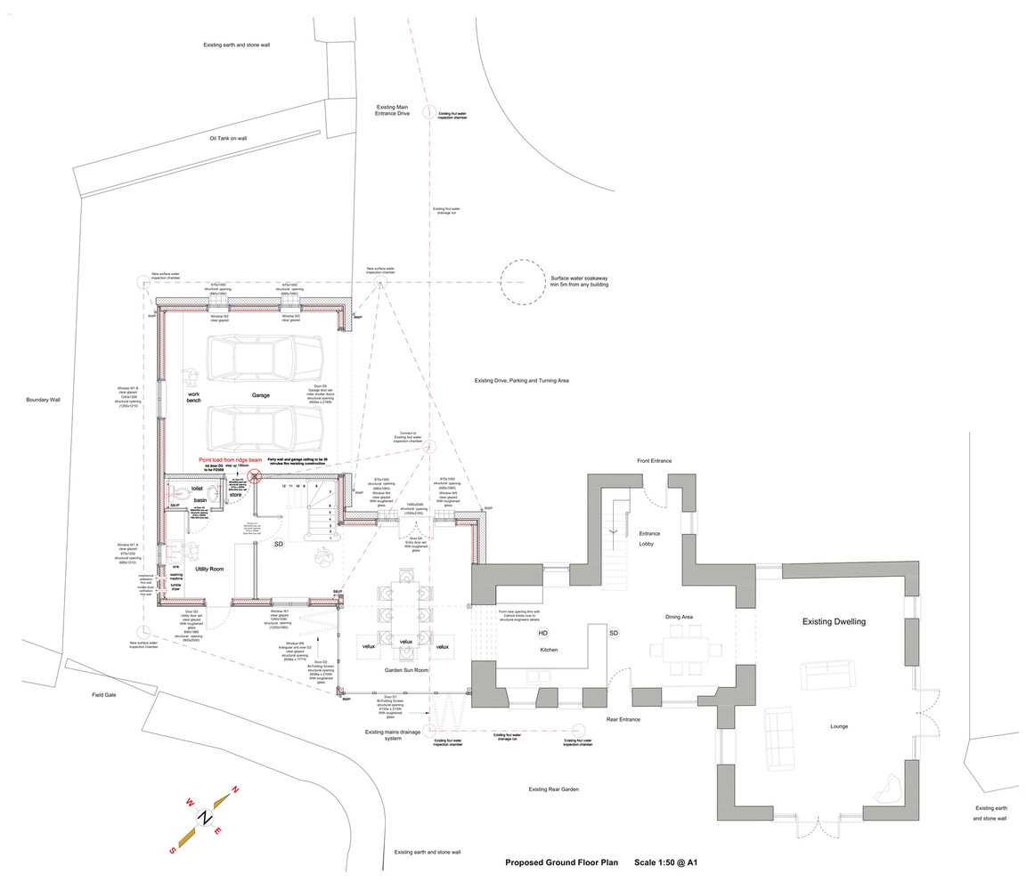
The contribution of the garage creates an enclosed courtyard between the buildings and the Cornish stone wall. Currently on site is a small timber clad summer house with a large decked area to the side and a mobile home to the rear.
The applicants’ brief is to remove the summer house and mobile home and replace it with a double garage which the design should be of a traditional nature with an additive form and a scale that has a typical vernacular of the buildings in the area.
The position and orientation of the building is such that a courtyard is created with appropriate access for turning/parking provided for a vehicle to enter and leave in a forward gear. The building has been designed to incorporate a double garage with a garden potting shed to the ground floor. The potting shed will give access to first floor area used for storage.
The design of the garage uses the main dwellings existing ridge height and limits it to 400mm below to ensure the building retains its traditional scale and does not impose on the existing barn conversion.
The floor area of the existing structures comes to 67m2. The internal ground floor area of the proposed building after completion has been kept to similar dimensions as to not be over bearing on the site.
The external appearance of the garage is to be kept in keeping with that of the barn conversion, with natural stonework and granite quoins. Cedar cladding will be used to distinguish itself from the natural stonework.
Planning Authorities should continue to ensure that the quality and character of the wider countryside is protected and where possible enhanced.
One of the key principles in PPS7 is that ‘all development in rural areas should be well designed and inclusive, in keeping and scale with its location and sensitive to the character of the countryside and local distinctiveness’.
In considering this policy in relation to the proposed development, it is pointed out that: The fabric and character of the building in this area will be enhanced by the proposed development, which will comply with the key principle in PPS(7) referred to above in regard to development being well-designed, in keeping and scale with its location and sensitive to the character of the countryside and local distinctiveness.
CONCLUSIONS
The proposed development would enhance the site and would be undertaken without harm to the character and appearance of the countryside in this area.
The proposal is in accord with national planning guidance for development in the countryside and with Cornwall Structure Plan policies. The development is not considered to materially conflict with emerging Local Plan policies.


















